




Porte de Woluwe - Woluwelaan 2, 1150 Woluwe-Saint-Pierre LOCATION Bureaux 3/6/9 ans - 165 €/m²/an Location de places de parking 1 500 €/pp/an Charges Provision charges communes : 39 €/m²/an Disposition fiscale foncière 33 €/m²/an Disposition fiscale régionale : 11 €/m²/an Disposition fiscale municipale : 7 €/m²/an
Description
LOCATION Bureaux
3/6/9 ans - 165 €/m²/an
Location de places de parking
1 500 €/pp/an
Charges
Provision charges communes : 39 €/m²/an
Comprend (sans que cette liste soit limitée) :
- Services de réception pendant les heures de bureau
- Entretien et nettoyage des places de parking et des parties communes du bâtiment
- Déneigement
- Entretenir les espaces verts autour du bâtiment et sur la terrasse commune
- Nettoyage des fenêtres (à l'extérieur 2 fois par an) et entretien de la façade
- Maintenance des installations techniques (ascenseurs, installations CVC, installations électriques, portes d'entrée,...), y compris les alarmes techniques de données/télécommunications
- Contrôles réglementaires sur les installations communes et les équipements de protection incendie
- Collecte des ordures
- Consommation énergétique des pièces/installations communes
- Assurance des bâtiments
- Coûts de gestion
Disposition fiscale foncière 33 €/m²/an
Disposition fiscale régionale : 11 €/m²/an
Disposition fiscale municipale : 7 €/m²/an
Documents
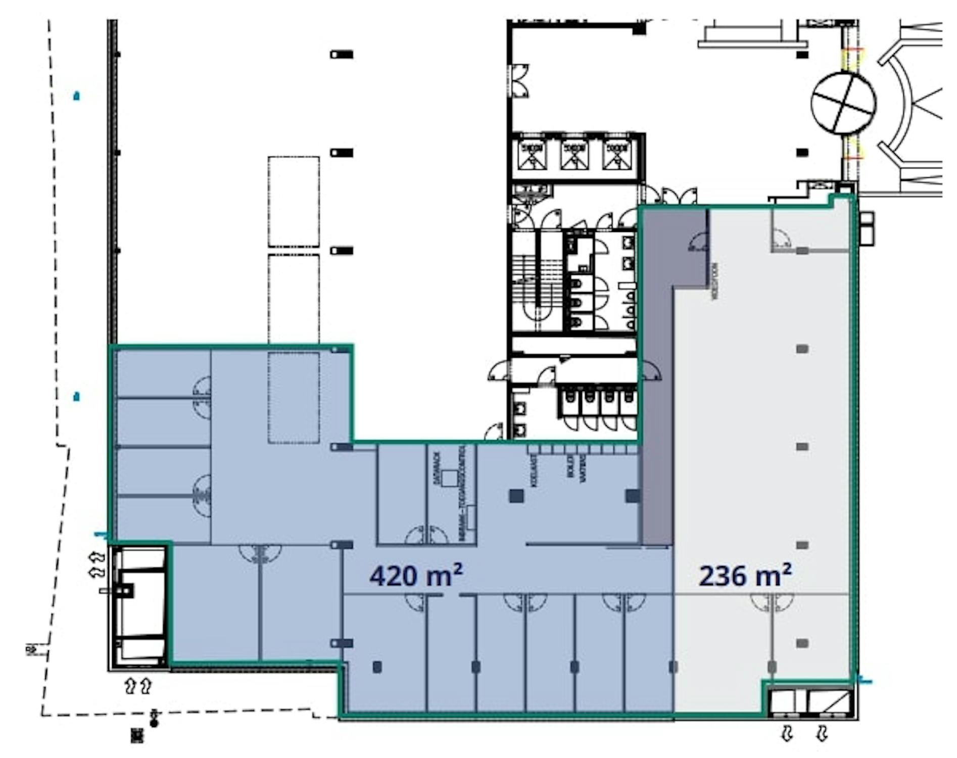
Caractéristiques
| Type | Immeuble de bureaux |
| Construction | 4-façades |
| État | Bon |
| Disponible à partir de | 01.01.2023 |
| Parking(s) | 123 |
| Type de parking | Emplacement |
| Vue sur mer | Oui |
| Rez-de-chaussée | Oui |
| Ascenseur | Oui |
| Surface de la parcelle | 656m² |
| Surface habitable | 656m² |
| Surface commerciale | 656m² |
| Surface bâtie | 656m² |
| Alarme | Oui |
Information légale
Vos agents immobiliers
Votre agence
1000 Brussels
