




Commerce d’angle sur la rue Antoine Dansaert, grande visibilité, 3 niveaux dont entresol polyvalent. Opportunité rare sur emplacement AAA. Visite à saisir rapidement.
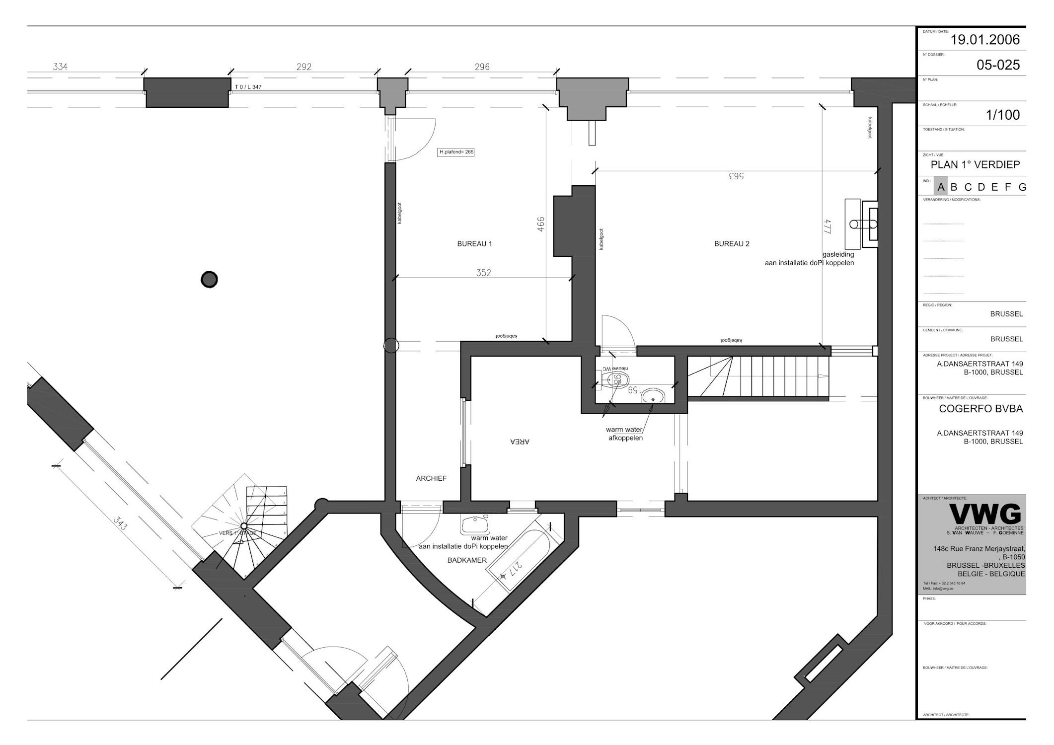
Description
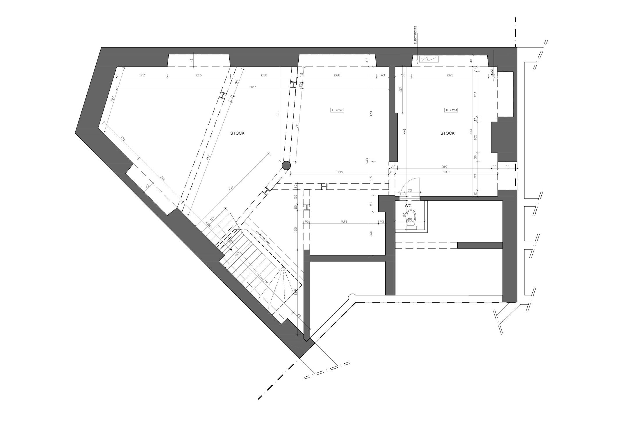
Le bien s’étend sur trois niveaux :
- un espace principal au rez-de-chaussée ainsi qu’un sous-sol,
- un entresol au premier étage pouvant servir de bureau, de logement ou encore d’extension de la surface commerciale.
Ne tardez pas à demander une visite si vous souhaitez saisir cette opportunité unique dans une localisation AAA.
Affectation : Commerciale
Bien inscrit sur la liste de sauvegarde / classé / procédure de classement ou d'inscription en cours : Repris à l'inventaire du patrimoine architectural
Permis de lotir : non
Bien situé dans un périmètre de droit de préemption : non
Droit de préférence pour le locataire : non
Calculez votre rendement
Rapport de rendement
Ce bien convient également pour un investissement. Utilisez notre simulateur pour calculer votre rendement ou contactez-nous pour plus d'infos.
Documents
Caractéristiques
| Type | Commerce |
| Année de construction | 1901 |
| Construction | 3-façades |
| État | Bon |
| Chambres à coucher | 1 |
| Salles de bains | 2 |
| Parking(s) | 0 |
| Nombre d'étages | 5 |
| Rez-de-chaussée | Oui |
| Ascenseur | Oui |
| Surface de la parcelle | 228m² |
| Surface habitable | 335m² |
| Surface bâtie | 373m² |
| Achat en vertu de droits de vente | Oui |
| Achat sous le régime TVA | Non |
| Loyer annuel (indicatif) | € 60.000 |
| Rendement locatif brut | 5.45 % |
| Actuellement loué | Oui |
| Habitation BEN (quasi neutre en énergie) | Non |
| Attestation de contrôle de conformité | Oui |
| Compteur électrique | Individuel |
| Type de compteur électrique | Compteur à tarif unique |
| Réservoir de mazout | Non |
| Pompe à chaleur | Non |
| Chaudière | Individuel |
| Source de chaleur | Chauffage à accumulation |
| Type de chauffage | Radiateurs |
| Compteur gaz naturel | Individuel |
| Compteur d'eau | Individuel |
| Vitrage | Double vitrage |
| Alarme | Oui |
Information légale
| Renseignements urbanistiques | en cours de demande |
Votre agence
1050 Brussels
