




Vous recherchez un bon investissement ? Investissez dans notre avenir, dans ce bâtiment de 5 chambres d'étudiants récemment rénovées à Hasselt. Bientôt la ville étudiante par excellence !
| Surface au sol 105m² | Surface habitable / | Chambres à coucher 5 | 
| Terrasse ou jardin Oui | Année de construction 1899 | CPE 383 kWh/m² | 
| Surface au sol 105m² | Surface habitable / | 
| Chambres à coucher 5 | Terrasse ou jardin Oui | 
| Année de construction 1899 | CPE 383 kWh/m² | 
Description
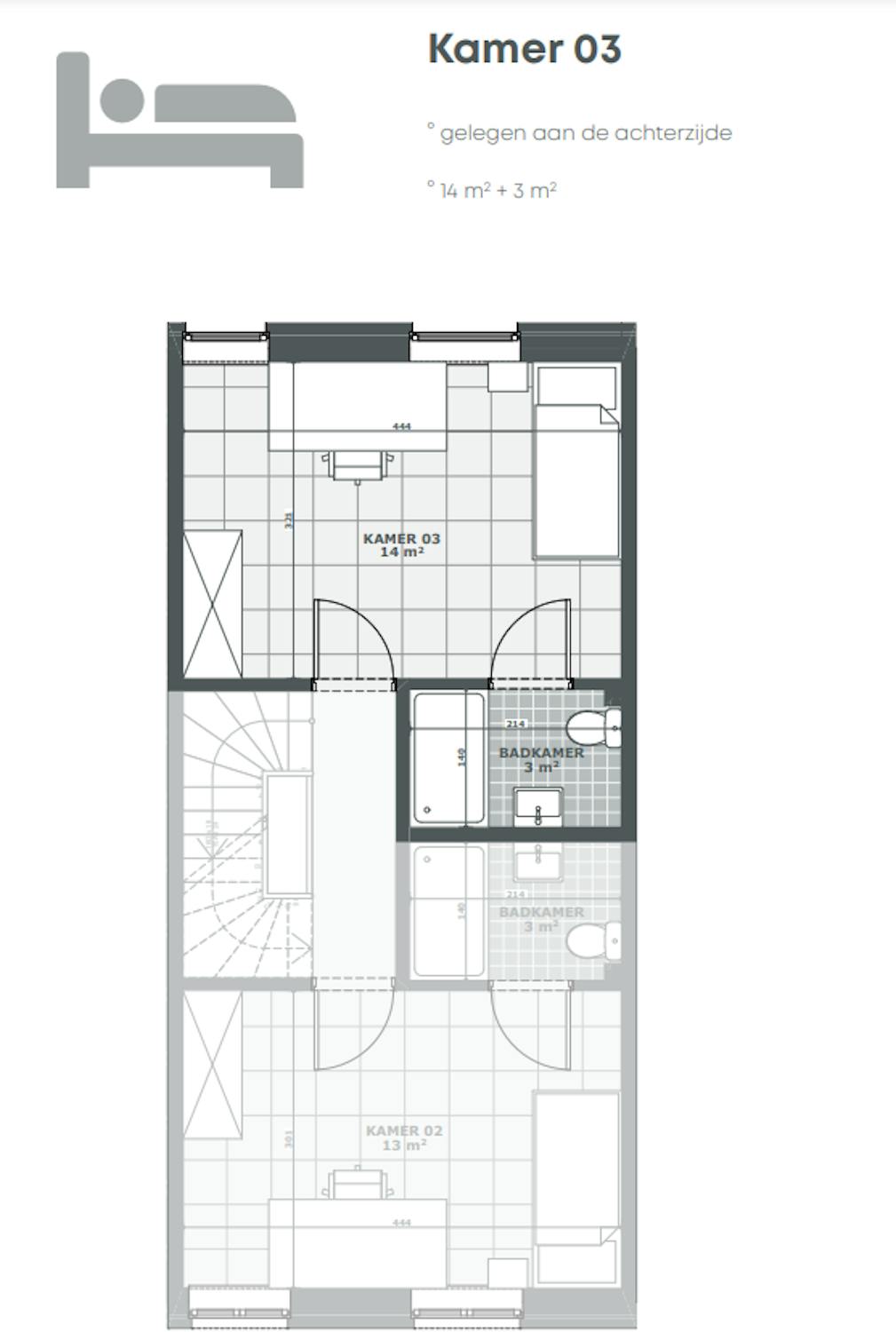
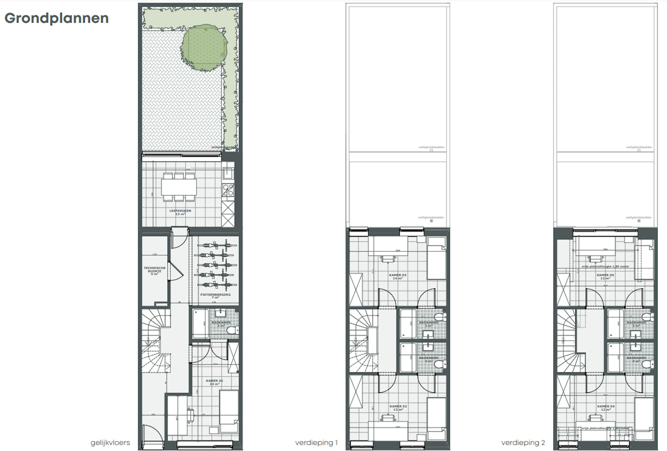
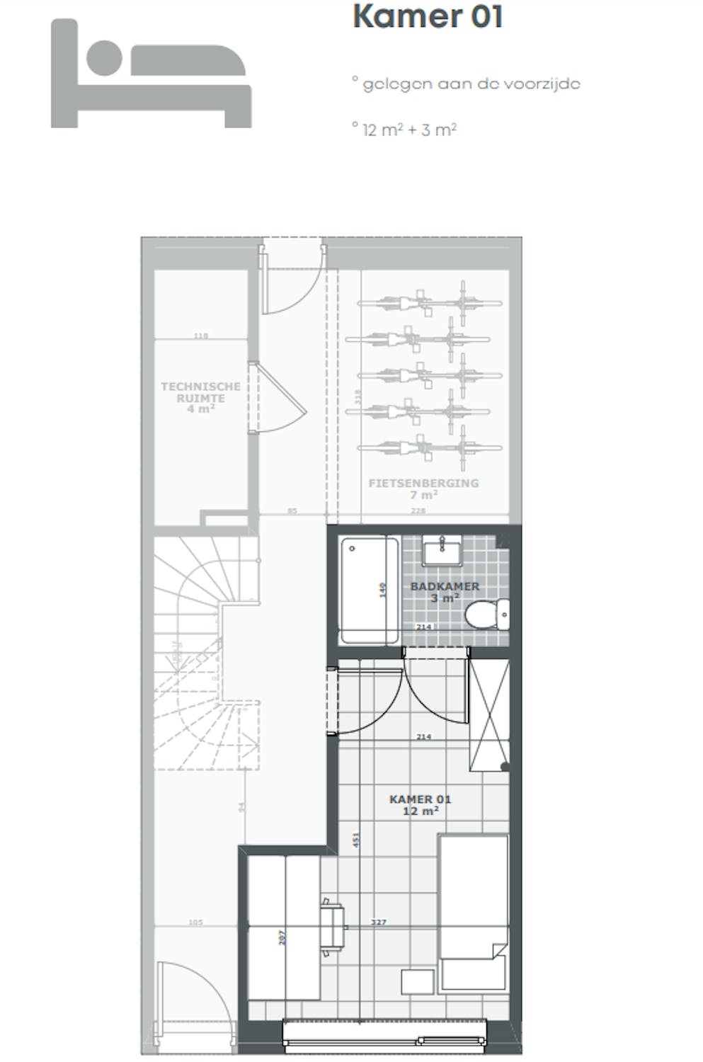
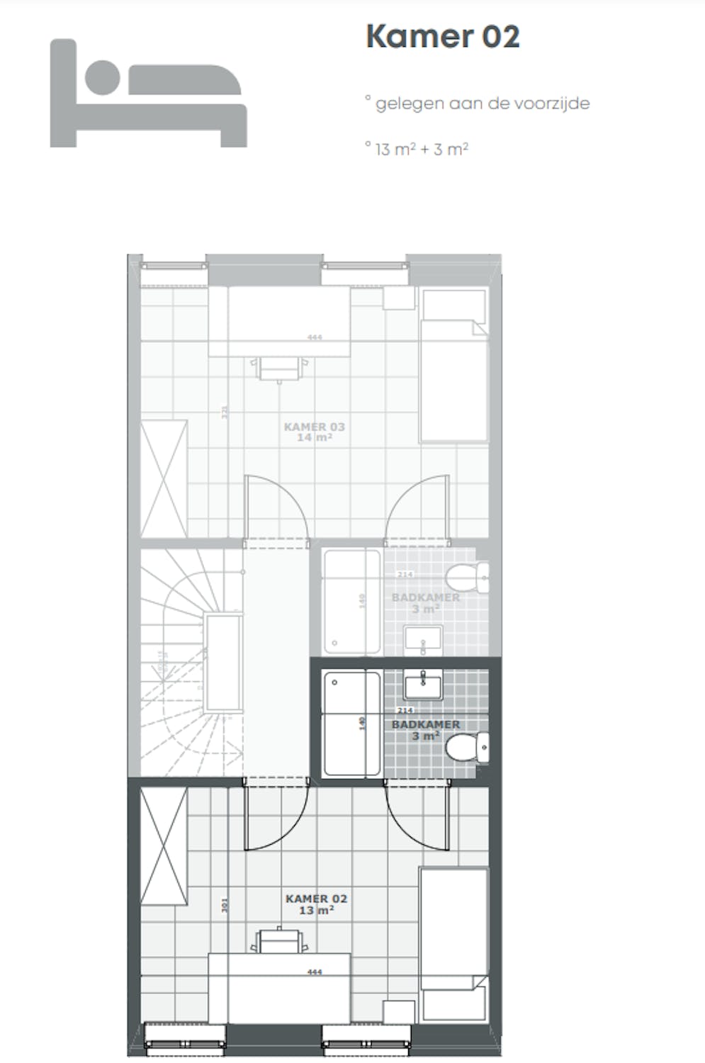
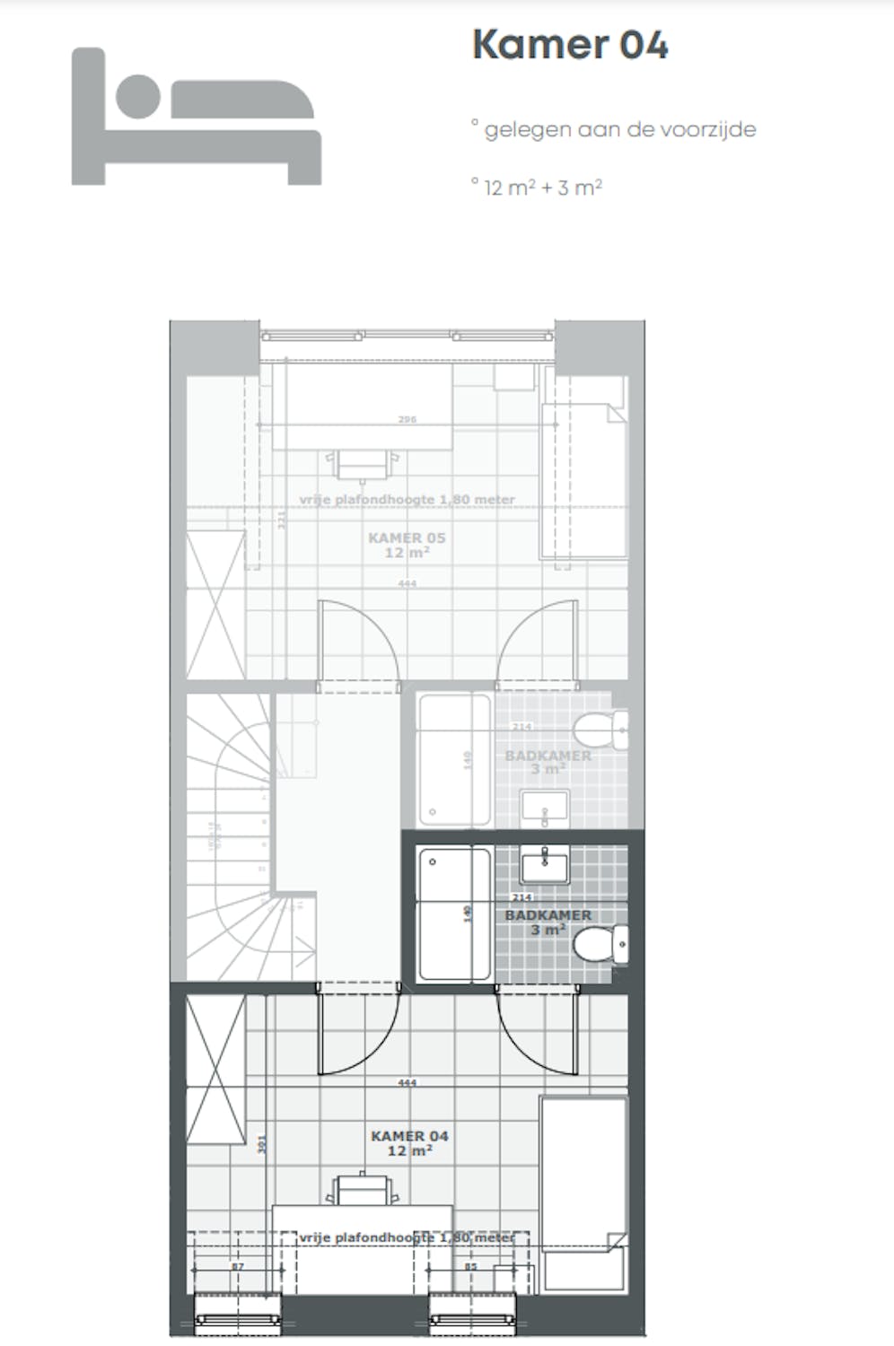
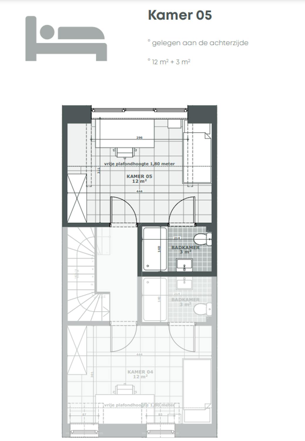
Après avoir terminé, 5 étudiants peuvent séjourner ici dans une chambre entièrement rénovée avec leur propre cellule sanitaire avec lavabo, douche et toilettes. La cuisine commune donne sur une jolie cour et un local à vélos est mis à votre disposition.
Les 5 chambres d'étudiants mesurent entre 12 m² et 14 m², réparties sur 3 étages.
Le projet est situé sur le Runkstersteenweg, à proximité de la gare et du Petit Anneau de Hasselt et à proximité des principaux campus du Limbourg.
Le centre-ville de Hasselt n'est qu'à quelques pas et est également facilement accessible à pied, à vélo ou en transports en commun.
Les écoles et universités suivantes se trouvent à proximité immédiate :
Université PXL - Onzième ligne du campus
Université PXL - Campus de Vilderstraat
Université PXL — Campus Guffenslaan
Université des sciences appliquées PXL — Campus Quartier Canal
Université de Hasselt
Université UCLL
Curieux ? Appelez-nous ou envoyez-nous un e-mail pour prendre rendez-vous : 011 30 50 50 ou linda.jacobs@dewaele.com
Les documents pertinents sont également disponibles sur notre site Web www.dewaele.com
 
        Combien vaut votre bien ?
Documents
Caractéristiques
| Type | Kot d'étudiant | 
| Année de construction | 1899 | 
| Année de rénovation | 2025 | 
| Construction | 2-façades | 
| État | Bon | 
| Chambres à coucher | 5 | 
| Meublé | Oui | 
| Surface de la parcelle | 105m² | 
| Revenu cadastral | € 1.426 | 
| Achat en vertu de droits de vente | Oui | 
| Achat sous le régime TVA | Non | 
| Source de chaleur | Gaz naturel | 
Information légale
| CPE | 383.0 kWh/m² | 
| Évaluation aquatique |   Score du bâtiment : D (ID : 7047974) / Score du terrain : D (ID : 0279/00S003) | 
| Zone inondable définie | non | 
| Zone riveraine | non | 
| Permis d'environnement pour des actes d'urbanisme | oui | 
| Droit de préemption | non | 
| Destination urbanistique | zone d'habitat | 
| Permis de lotissement | non | 
| Maintien | pas de mesures judiciaires de réparation ou constraintes administratives | 
CPE
Votre agence
 
        
        3500 Hasselt

 
             
                                    
                                                                     
                                    
                                                                     
                                    
                                                                     
                                    
                                                                     
                                    
                                                                     
                                    
                                                                     
                                    
                                                                     
                                    
                                                                     
                                    
                                                                     
                                    
                                                                     
                                    
                                                                     
                                    
                                                                     
                                         
                                         
                                         
                                         
                                         
                                         
                                         
                                         
                                         
                                         
                                         
                                         
             
            