
Vendu / Loué !
Vous êtes à la recherche d'un bien similaire ?
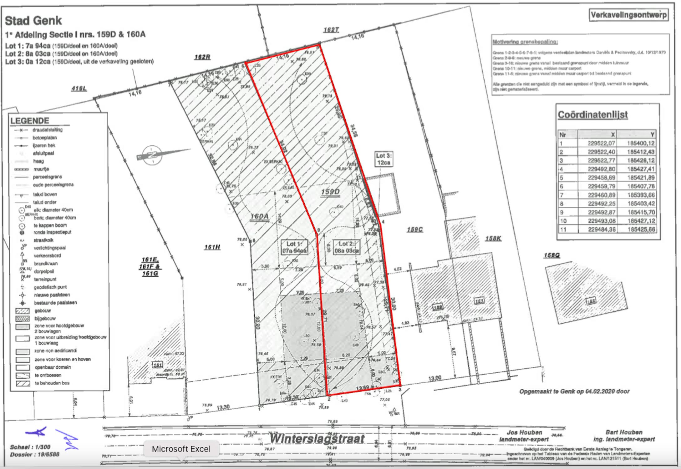
Terrain de 803m² à vendre à Genk
Terrain de 803m² à vendre à Genk
Télécharger le document
Visite virtuelle
Vous êtes à la recherche d'un bien similaire ?
Vous êtes à la recherche d'un bien similaire ?
Un local commercial, une villa à la campagne ou un appartement à la côte ? Faites-nous savoir ce que vous recherchez et recevez nos nouvelles offres en avant-première par mail !
Nous utilisons des cookies pour optimiser votre expérience sur notre site Web. De plus, nous souhaitons utiliser des cookies de suivi et de publicité pour rendre votre visite sur notre site plus personnelle. Vous êtes curieux de découvrir ces annonces personnalisées ? Cliquez sur "Je suis d'accord" (avec notre Politique de confidentialité). Lire plus