



Espace de bureau récemment construit (120 m²) à vendre dans la K. Deswertlaan à Blankenberge. En plus d'un bureau ou d'un espace commercial d'un étage, le projet économe en énergie comprend également 12 appartements.
Description
Livraison en coque +.
Propriétés :
- Géothermie
- Panneaux solaires
- Chauffage au sol
- Catégorie d'isolation thermique et acoustique la plus élevée.
- Système de ventilation D.
- Récupération de l'eau
« VICTOR » est un projet de 12 appartements neufs à vendre à Blankenberge qui attire immédiatement l'attention par son architecture moderne et intemporelle.
Le projet est particulièrement remarquable pour son efficacité énergétique.
Emplacement : situé juste à côté de De Smet De Naeyerlaan, à quelques pas de la gare, du centre-ville et des transports en commun.
 
        Combien vaut votre bien professionnel?
Caractéristiques
| Type | Commerce | 
| Construction | 2-façades | 
| État | Bon | 
| Nombre d'étages | 4 | 
| Rez-de-chaussée | Oui | 
| Ascenseur | Oui | 
| Surface de la parcelle | 120m² | 
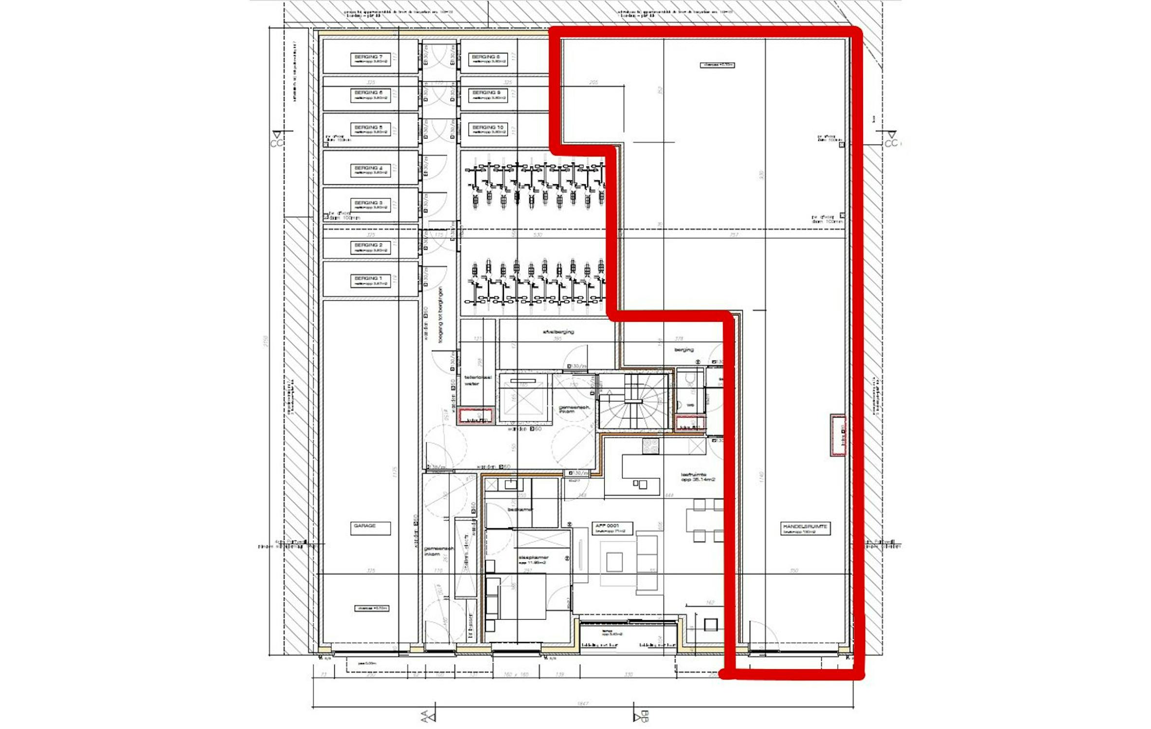
| Surface commerciale | 120m² | 
| Achat en vertu de droits de vente | Oui | 
| Achat sous le régime TVA | Non | 
| Valeur du terrain (hors droits de vente) | € 97.650,00 | 
| Valeur de la construction (hors TVA) | € 181.350,00 | 
| Frais de notaire (indicatif) | 4.750 | 
| Estimation des coûts de raccordement | 5.000 | 
| Loyer annuel (indicatif) | € 0 | 
| Source de chaleur | Géothermique | 
| Type de chauffage | Chauffage par le sol | 
| Vitrage | Double vitrage | 
Information légale
| PEB | en cours de demande | 
| Évaluation aquatique | Scores du bâtiment : B (ID : 18620902) - B (ID : 8351259) / Score du terrain : B (ID : 0219/00M005) | 
| Zone inondable définie | non | 
| Zone riveraine | non | 
| Permis d'environnement pour des actes d'urbanisme | oui | 
| Droit de préemption | non | 
| Destination urbanistique | zone d'habitat | 
| Permis de lotissement | non | 
| Maintien | pas de mesures judiciaires de réparation ou constraintes administratives | 
Vos agents immobiliers
 
            
                Agent immobilier - vente nouvelles constructions
Agent immobilier - courtier
IPI 508 984
Votre agence
 
        
        8370 Blankenberge

 
             
                                    
                                                                     
                                    
                                                                     
                                    
                                                                     
                                    
                                                                     
                                    
                                                                     
                                         
                                         
                                         
                                         
                                         
             
            