



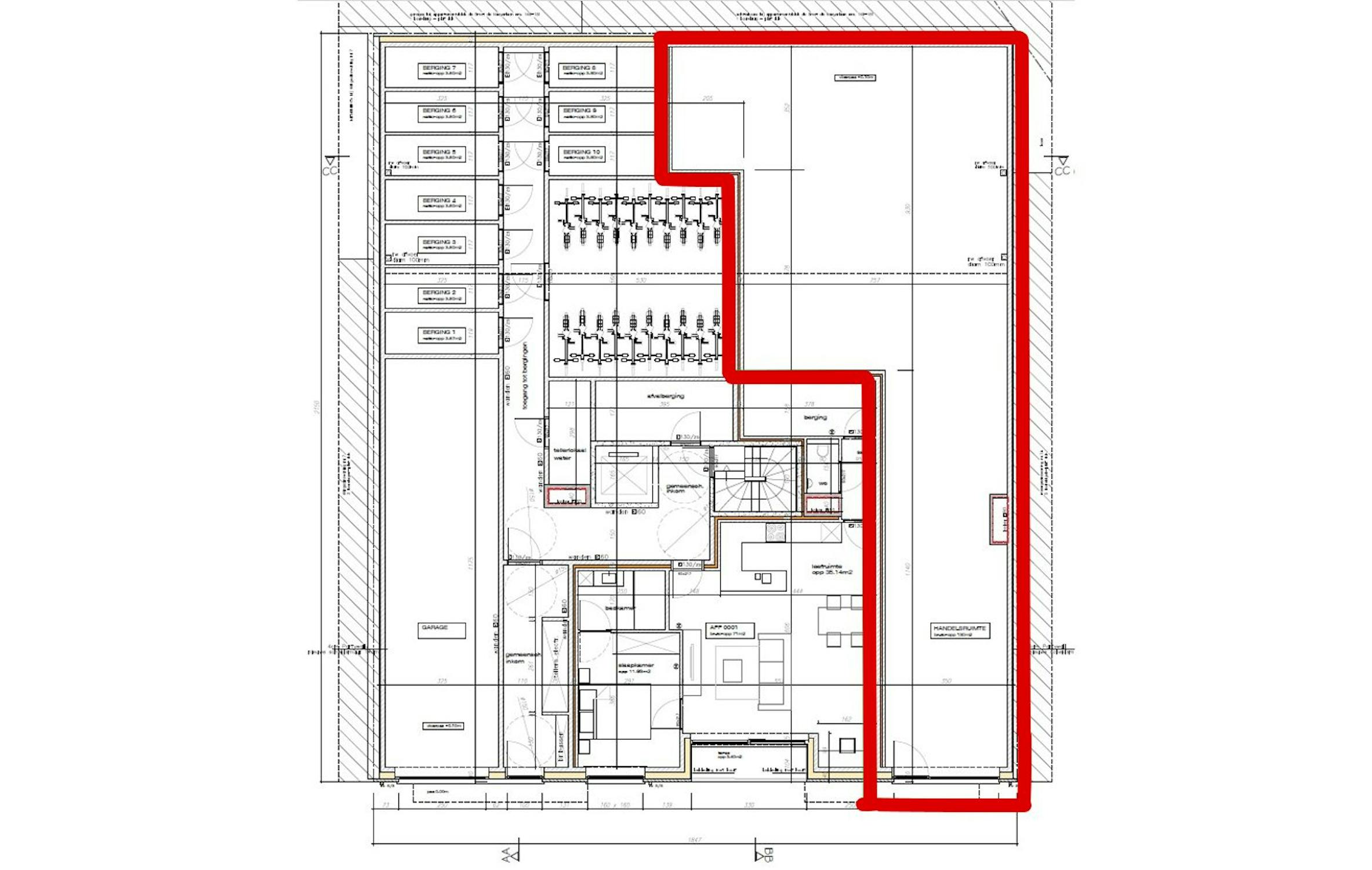
Nieuwbouw handelsruimte (120 m²) te koop in de K. Deswertlaan te Blankenberge. Het energiezuinige project omvat naast een gelijkvloerse kantoor- of handelsruimte ook 12 appartementen.
Het project blinkt vooral uit door zijn energiezuinigheid.
Geothermie, zonnepanelen, vloerverwarming, hoogste categorie van thermische en akoestische isolatie, ventilatie systeem D.
Moderne en tijdloze architectuur
Omschrijving
Oplevering in casco +.
Eigenschappen:
- Geothermie
- Zonnepanelen
- Vloerverwarming
- Hoogste categorie van thermische en akoestische isolatie.
- Ventilatie systeem D.
- Waterrecuperatie
'VICTOR' is een project met 12 nieuwbouwappartementen te koop in Blankenberge en valt meteen in het oog door zijn moderne en tijdloze architectuur.
Het project blinkt vooral uit door zijn energiezuinigheid.
Ligging: direct gelegen naast de De Smet De Naeyerlaan, op wandelafstand van het station, centrum en openbaar vervoer.
Aarzel zeker niet om contact op te nemen indien dit bedrijfsvastgoed bestaande uit een nieuwbouw handelsruimte te koop in Blankenberge u kan interesseren.

Hoeveel is je bedrijfspand waard?
Eigenschappen
Type | Handelspand |
Bebouwing | Gesloten |
Staat | Goede staat |
Aantal verdiepingen | 4 |
Gelijkvloers | Ja |
Lift | Ja |
Perceelsoppervlakte | 120m² |
Handelsoppervlakte | 120m² |
Aankoop onder verkooprechten | Ja |
Aankoop onder BTW | Nee |
Grondwaarde (excl. verkooprechten) | € 97.650,00 |
Constructiewaarde (excl btw) | € 181.350,00 |
Notariskosten (indicatief) | 4.750 |
Raming aansluitingskosten | 5.000 |
Jaarhuur (indicatief) | € 0 |
Verwarmingsbron | Geothermie |
Verwarmingstype | Vloerverwarming |
Beglazing | Dubbele beglazing |
Wettelijke informatie
EPB | in opmaak |
Watertoets | Gebouwscores: B (ID: 18620902) - B (ID: 8351259) / Perceelscore: B (ID: 0219/00M005) |
Afgebakend overstromingsgebied | nee |
Afgebakende oeverzone | nee |
Omgevingsvergunning voor stedenbouwkundige handelingen | ja |
Voorkooprecht | nee |
Stedenbouwkundige bestemming | woongebied |
Omgevingsvergunning voor het verkavelen van gronden | nee |
Handhaving | geen rechterlijke herstelmaatregel of bestuurlijke maatregel opgelegd |
Je makelaars

Je kantoor

8370 Blankenberge