




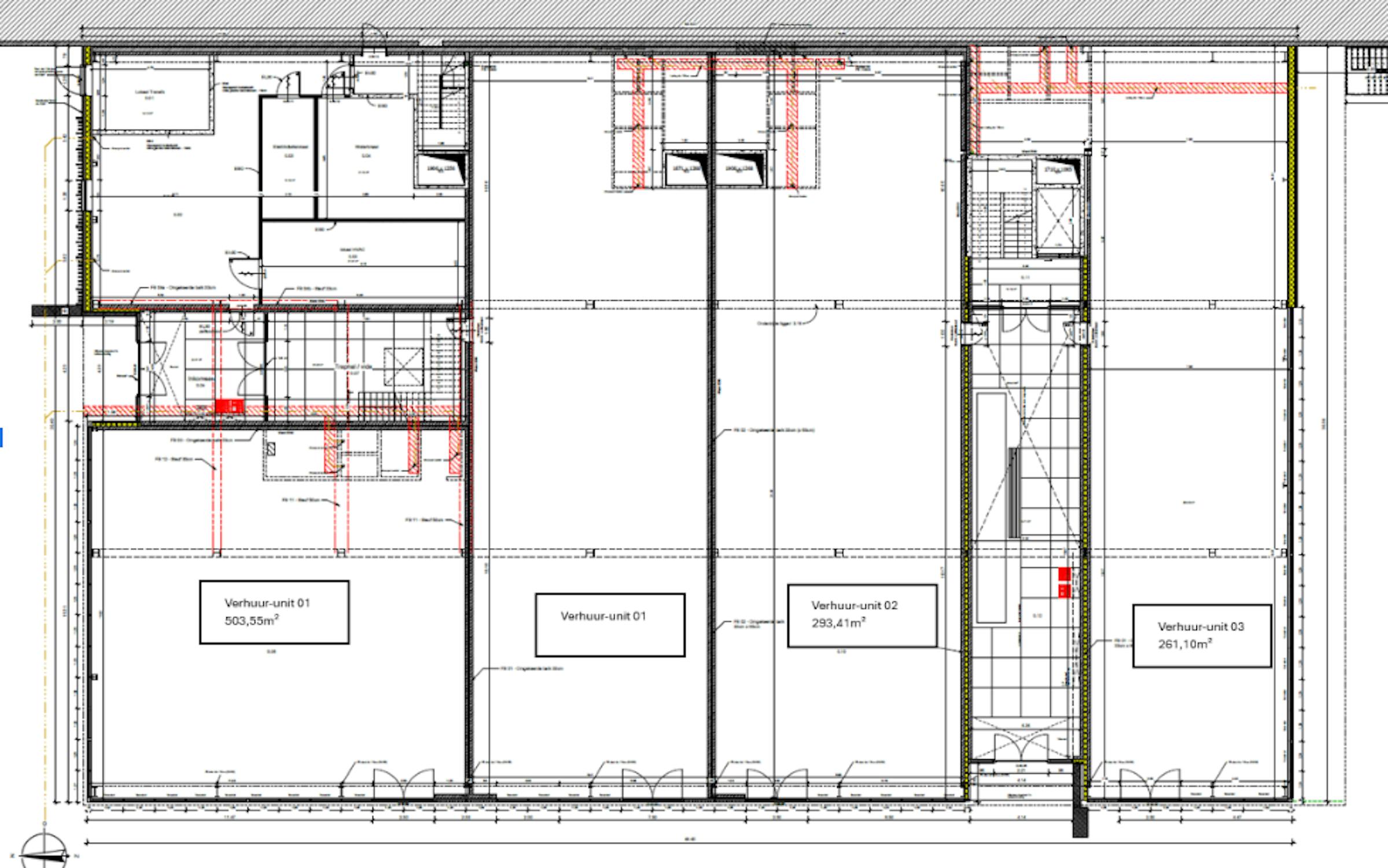
Commerciële ruimte te huur (261 m²) + Magazijn (280 m²)
Flexibele indeling door casco oplevering
Goede ligging in commerciële straat
Beschikbaar op korte termijn
Omschrijving
De ruimte wordt in casco staat opgeleverd. Dit betekent dat de basisstructuur aanwezig is.
Dit biedt de unieke kans om de ruimte volledig naar eigen smaak en functionele eisen in te richten, waardoor een perfecte afstemming op de beoogde commerciële activiteit mogelijk is.
De brandklasse B van het pand geeft aan dat het voldoet aan specifieke brandveiligheidsvoorschriften.
Bijzonderheden:
- Goede ligging in een commerciële straat.
- Voldoet aan brandklasse B.
Magazijn
Kenmerken:
- KMO-unit (loods met glaspartij)
- Binnenoppervlakte ca. 280 m²
- 2 bijhorende parkeerplaatsen
Afwerking:
- Gevel met moderne glaspartij
- Lichtstraat (elektrisch bedienbaar - opent bij brand)
- LED verlichting
- Automatische poort
- Nutsvoorzieningen (elektriciteit 63A 3-fasig 400V en stadswater)
- Mooie buitenaanleg met beplanting
Modaliteiten:
- Verdeelsleutel in gemeenschappelijke onderhoudskosten voor onder meer groenonderhoud, parking en dak
- Prijs exclusief BTW onder terbeschikkingstelling
- Laag registratierecht
Aarzel zeker niet ons te contacteren indien dit bedrijfsvastgoed bestaande uit een nieuwbouw kmo-unit te huur in Oudenburg u mogelijks kan interesseren via business.brugge@dewaele.com of 050/33.33.00.
Documenten
Eigenschappen
| Type | Magazijn met bureel |
| Renovatiejaar | 2025 |
| Bebouwing | Halfopen |
| Staat | Nieuwe staat |
| Type parkeerplaats | Staanplaats |
| Handelsoppervlakte | 541m² |
| Rolbrug | Nee |
| Conformiteit keuringsattest | Ja |
| Stookolietank | Nee |
Wettelijke informatie
| EPB | in opmaak |
Je kantoor
8000 Brugge
