
Deze eigendom is niet meer beschikbaar.
Ben je op zoek naar iets gelijkaardigs?
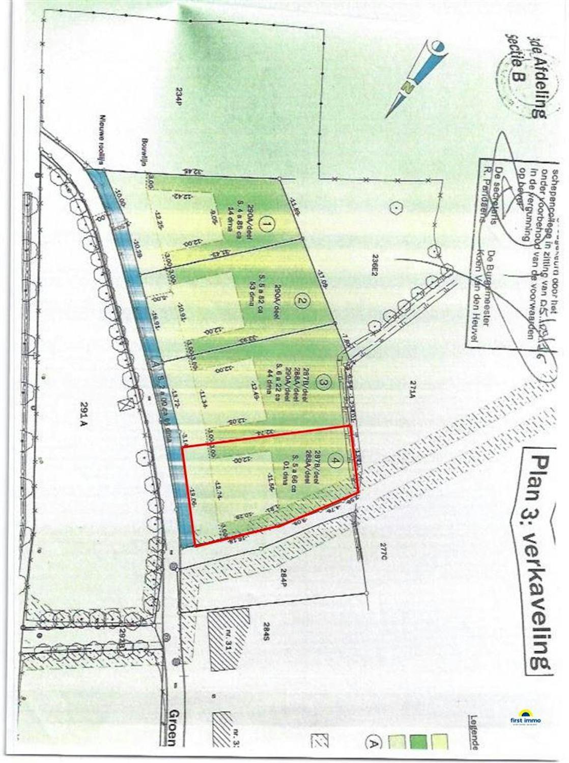
Bouwgrond voor open bebouwing van 566m² in Breendonk
Bouwgrond voor open bebouwing van 566m² in Breendonk
Document downloaden
Virtuele tour bekijken










Ben je op zoek naar iets gelijkaardigs?
Ben je op zoek naar iets gelijkaardigs?
Een ruim bedrijfspand, een villa in 't groen of een appartement aan zee. Laat ons weten wat je precies zoekt en ontvang als eerste het meest recente (en discrete) aanbod in je mailbox. En dit nog voor het op de vastgoedwebsites wordt gepubliceerd!
Wij maken gebruik van cookies om jouw gebruikservaring op onze website zo optimaal mogelijk te maken. Daarnaast wensen wij tracking- en advertentiecookies te gebruiken om jouw websitebezoek persoonlijker te maken. Ben je benieuwd naar deze gepersonaliseerde advertenties? Klik dan op “Akkoord”(met ons privacybeleid). Lees meer