




Interessante investeringsmogelijkheid in het centrum van Middelkerke! Deze garagebox is te koop op het gelijkvloers van de residentie Tempête, met ingang via de Gentstraat te Middelkerke.
Rendement
1,84 %
|
Huurprijs
€ 1.920/jaar
|
Huursituatie
Niet verhuurd
|
Grondoppervlakte
/
|
(Bruto) oppervlaktes
/
|
Bouwjaar
2026
|
Slaapkamers
/
|
EPB
/
|
Rendement
1,84 %
|
Huurprijs
€ 1.920/jaar
|
Huursituatie
Niet verhuurd
|
Grondoppervlakte
/
|
(Bruto) oppervlaktes
/
|
Bouwjaar
2026
|
Slaapkamers
/
|
EPB
/
|
Omschrijving
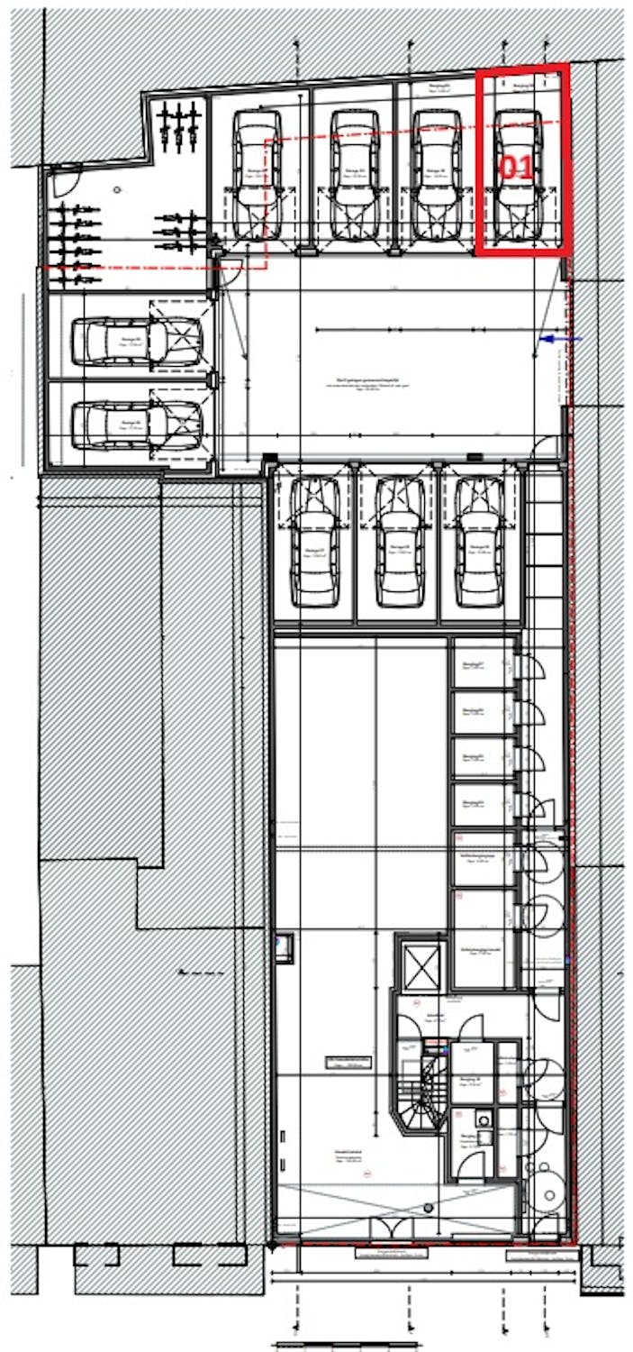
Makkelijk in en uit te rijden en gelegen op een topligging in Middelkerke.
Afmetingen:
- Diepte: 6,02m
- Breedte: 2,85m
Algemeen:
- verkoop onder registratie en BTW-stelsel
- Stedenbouw: Vg/Wg/Gmo/Gvkr/Vv
Bent u op zoek naar een garagebox te koop, op een centrale locatie te Middelkerke? Contacteer ons kantoor voor meer informatie!
Bereken je rendement
Rendementsrapport
Deze eigendom is ook geschikt als investering. Maak gebruik van onze simulator om je rendement te berekenen of neem contact op voor meer info.
Documenten
Eigenschappen
Type | Garagebox |
Bouwjaar | 2026 |
Staat | Nieuwe staat |
Aankoop onder verkooprechten | Ja wat betreft de grondwaarde |
Aankoop onder BTW | Ja wat betreft de constructiewaarde |
Percentage BTW | 21% |
Grondwaarde (excl. verkooprechten) | € 28.475,00 |
Constructiewaarde (excl btw) | € 56.525,00 |
Jaarhuur (indicatief) | € 1.920 |
Bruto huurrendement | 1.84 % |
Wettelijke informatie
Watertoets | Gebouwscore: A (ID: 31895634) / Perceelscore: A |
Afgebakend overstromingsgebied | nee |
Afgebakende oeverzone | nee |
Omgevingsvergunning voor stedenbouwkundige handelingen | ja |
Voorkooprecht | nee |
Stedenbouwkundige bestemming | woongebied |
Omgevingsvergunning voor het verkavelen van gronden | nee |
Handhaving | geen rechterlijke herstelmaatregel of bestuurlijke maatregel opgelegd |
Je makelaars


Je kantoor

8430 Middelkerke