




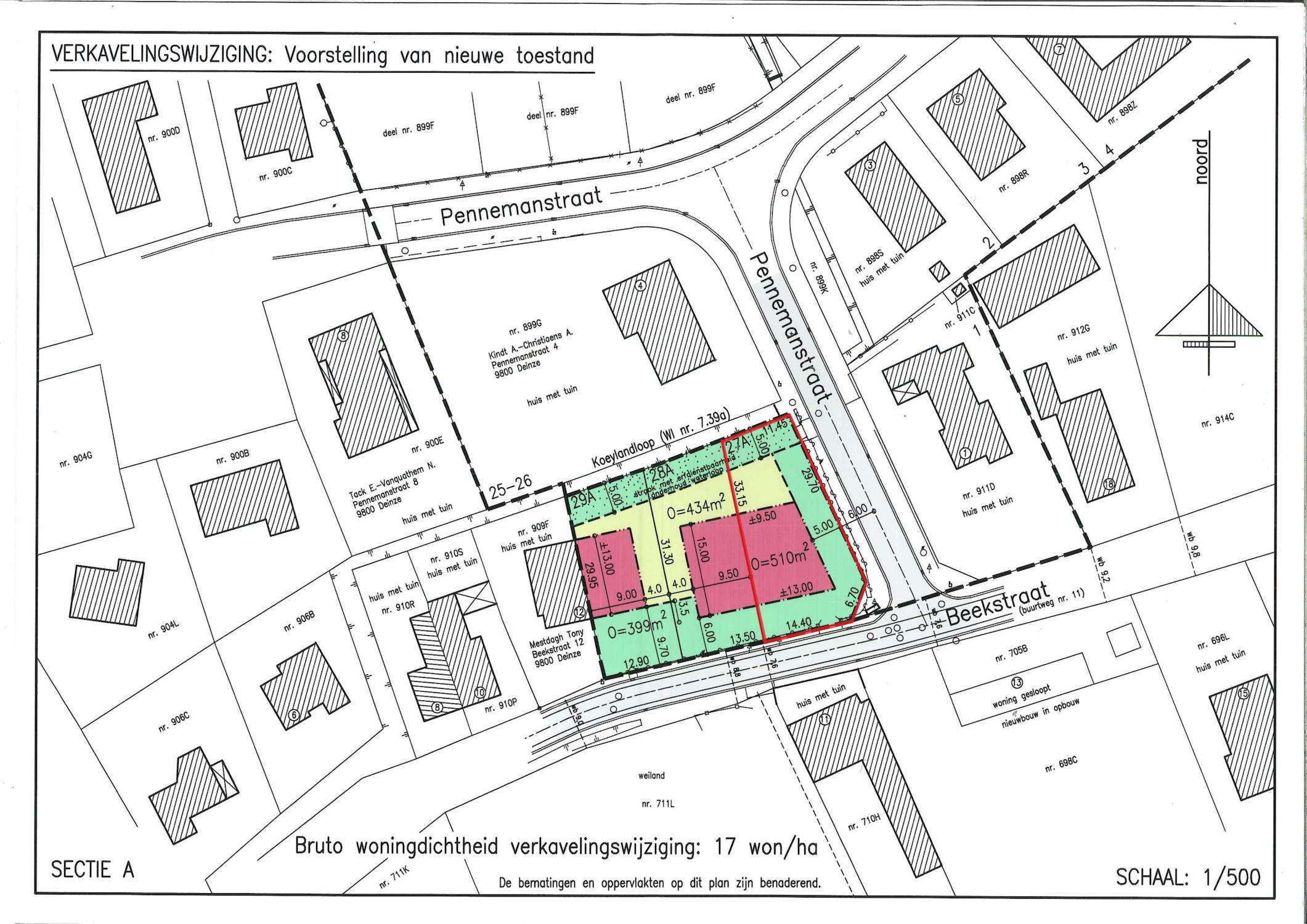
Nabij het centrum van Astene vinden we dit lot van 510m² voor een halfopen bebouwing. Een rustige ligging in de Beekstraat is alvast gegarandeerd. Afwerking is in samenspraak met de aannemer.
|
Grondoppervlakte
510m²
|
(Bruto) oppervlaktes
/
|
Slaapkamers
/
|
|
Terras of tuin
Nee
|
Bouwjaar
/
|
EPC
/
|
|
Grondoppervlakte
510m²
|
(Bruto) oppervlaktes
/
|
|
Slaapkamers
/
|
Terras of tuin
Nee
|
|
Bouwjaar
/
|
EPC
/
|
Omschrijving
Type bouw: Half open bebouwing
Oriëntatie: Noord
Oppervlakte perceel: 510 m²
breedte perceel: 14,4 m
diepte perceel: 33,15 m
Bebouwbare oppervlakte: ca. 168 m².
OPGELET er is een bouwverplichting van toepassing
Hoeveel is je woning waard?
Eigenschappen
| Type | Grond |
| Staat | Goede staat |
| Gelijkvloers | Ja |
| Perceelsoppervlakte | 510m² |
| Aankoop onder verkooprechten | Ja |
| Aankoop onder BTW | Nee |
Wettelijke informatie
| Afgebakend overstromingsgebied | nee |
| Afgebakende oeverzone | nee |
| Omgevingsvergunning voor stedenbouwkundige handelingen | in aanvraag |
| Voorkooprecht | in aanvraag |
| Stedenbouwkundige bestemming | in aanvraag |
| Omgevingsvergunning voor het verkavelen van gronden | in aanvraag |
| Handhaving | in aanvraag |
Je kantoor
9880 Aalter
