




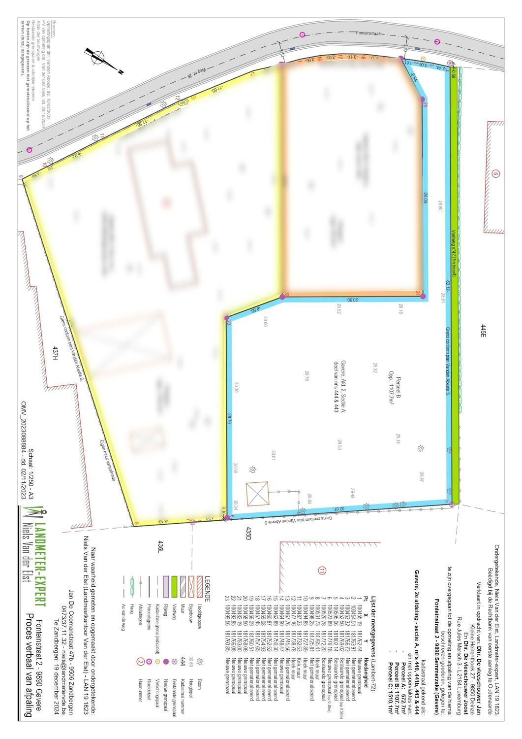
Perceel bouwgrond (1108 m²) voor het bouwen van een alleenstaande woning in Semmerzake (Gavere)
|
Grondoppervlakte
1108m²
|
(Bruto) oppervlaktes
/
|
Slaapkamers
/
|
|
Terras of tuin
Nee
|
Bouwjaar
/
|
EPC
/
|
|
Grondoppervlakte
1108m²
|
(Bruto) oppervlaktes
/
|
|
Slaapkamers
/
|
Terras of tuin
Nee
|
|
Bouwjaar
/
|
EPC
/
|
Omschrijving
Het perceel heeft een oppervlakte van 1108 m² en is bestemd voor het bouwen van een eengezinswoning.
Aarzel niet om ons te contacteren voor de volledige en gedetailleerde bouwvoorschriften.
Hoeveel is je woning waard?
Documenten
-
Onroerend erfgoedDownloaden
-
Ongeschikt- en/of onbewoonbaarverklaringDownloaden
-
Ongeschikt- en/of onbewoonbaarverklaringDownloaden
-
Luchtfoto's en historische kaartenDownloaden
-
GewestinfoDownloaden
-
Informatieplicht overstromingsgevaarDownloaden
-
Recht van voorkoopDownloaden
-
Kadastraal uittrekselDownloaden
-
Kadastraal uittrekselDownloaden
-
OpmetingsplanDownloaden
-
BodemattestDownloaden
-
BodemattestDownloaden
-
BrochureDownloaden
Eigenschappen
| Type | Bouwgrond |
| Staat | Goede staat |
| Perceelsoppervlakte | 1108m² |
| Aankoop onder verkooprechten | Ja |
| Aankoop onder BTW | Nee |
Wettelijke informatie
| Watertoets | Perceelscores: A (ID: 0443/00_00) - C (ID: 0444/00_00) |
| Afgebakend overstromingsgebied | nee |
| Afgebakende oeverzone | nee |
| Omgevingsvergunning voor stedenbouwkundige handelingen | nee |
| Voorkooprecht | nee |
| Stedenbouwkundige bestemming | woongebied met een culturele historische en/of esthetische waarde |
| Omgevingsvergunning voor het verkavelen van gronden | ja |
| Handhaving | geen rechterlijke herstelmaatregel of bestuurlijke maatregel opgelegd |
Je makelaars
Je kantoor
9700 Oudenaarde
