Dewaele Vastgoeddiensten © 2025

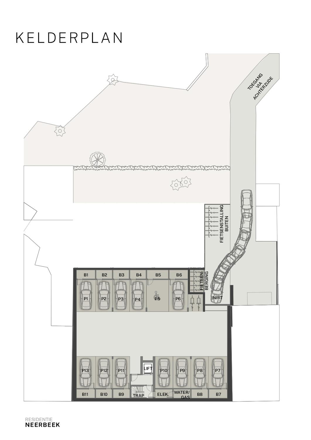
Parking met berging te koop in Bissegem

Nieuw
Zoekopdracht

Dewaele zoekt voor jou

Een ruim bedrijfspand, een villa in 't groen of een appartement aan zee. Laat ons weten wat je precies zoekt en ontvang als eerste het meest recente (en discrete) aanbod in je mailbox. En dit nog voor het op de vastgoedwebsites wordt gepubliceerd!

Zoekopdracht bewaren Bekijk het aanbod

Wij maken gebruik van cookies om jouw gebruikservaring op onze website zo optimaal mogelijk te maken. Daarnaast wensen wij tracking- en advertentiecookies te gebruiken om jouw websitebezoek persoonlijker te maken. Ben je benieuwd naar deze gepersonaliseerde advertenties? Klik dan op “Akkoord”(met ons privacybeleid). Lees meer

Je browser voldoet niet aan de minimale vereisten om deze website te bekijken. Onderstaande browsers zijn compatibel. Mocht je geen van deze browsers hebben, klik dan op het icoontje om de gewenste browser te downloaden.