




B.HIVE, gelegen in de Dejonckerstraat in Sint-Gillis, is een kantoorgebouw dat momenteel een metamorfose ondergaat. Het biedt een duurzame en moderne werkomgeving in een dynamische wijk met uitstekende verbindingen.
Omschrijving
Een strategische locatie
Het gebouw ligt in het hart van Brussel, op een uitzonderlijke locatie, parallel aan de beroemde Louizalaan. De dynamische wijk biedt directe toegang tot tal van restaurants, winkels en sportcentra, en is uitstekend bereikbaar met het openbaar vervoer (metro, tram, trein).
Duurzaamheid en moderniteit
Het gebouw wordt momenteel volledig gerenoveerd om te voldoen aan de hoogste normen op het gebied van energieprestaties en comfort. Het project maakt gebruik van de nieuwste duurzame technologieën:
- Verwarming met warmtepomp (zonder gas)
- Zonnepanelen
- Nieuwe ventilatie
- Ledverlichting
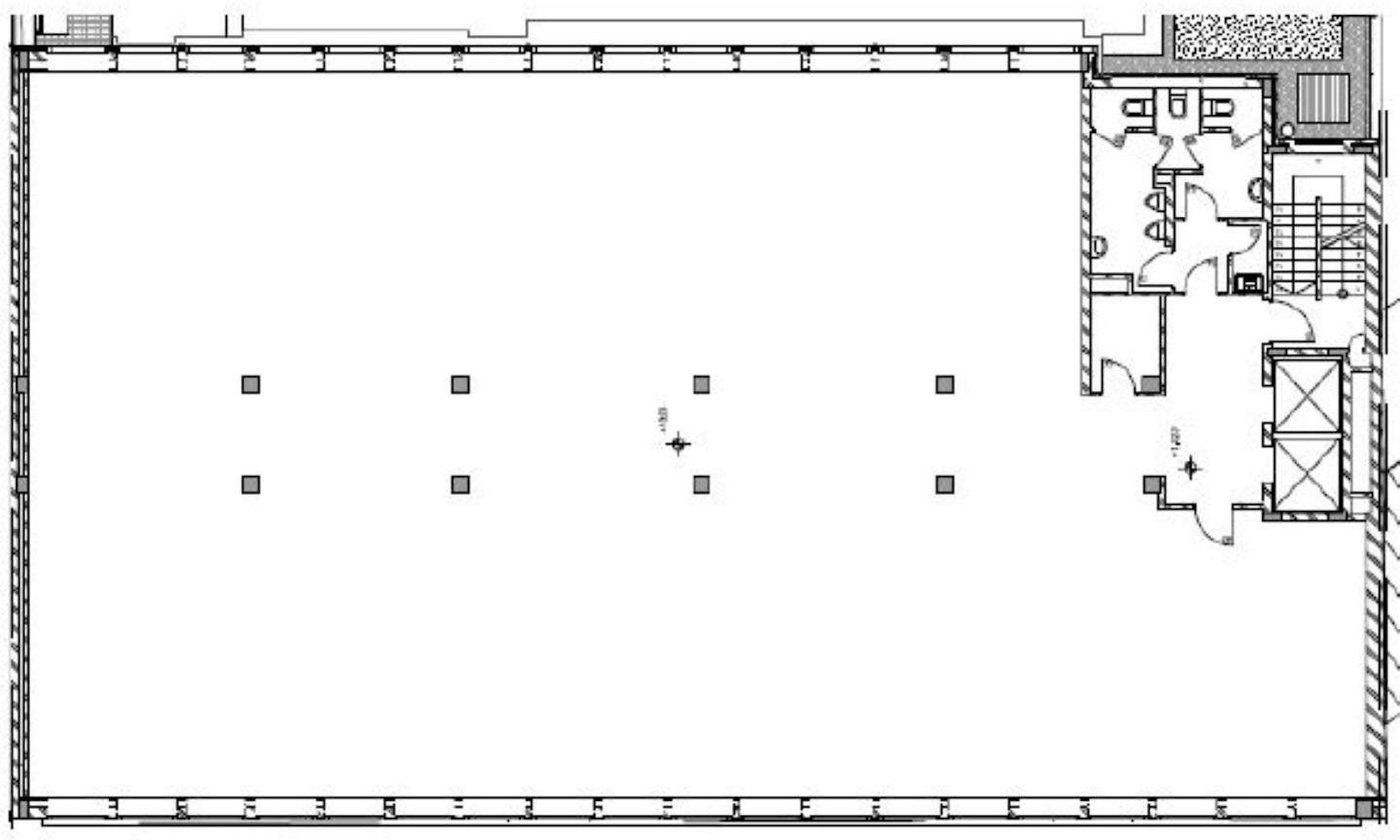
Oppervlakten en voorwaarden
Er zijn verschillende verdiepingen te huur:
- 1e verdieping: 535 m²
- 3e verdieping: 519 m²
- 4e verdieping: 482 m²
Financiële voorwaarden (per m²/jaar):
- Huurprijs: 195 €
- Kosten: 35 €
- Onroerende voorheffing: 30 €
- Gewestelijke belasting: 18 €
Er is ook een parkeerplaats beschikbaar voor 1500 €/jaar.
Eigenschappen
| Type | Kantoorgebouw |
| Bebouwing | Gesloten |
| Staat | Vernieuwd |
| Type parkeerplaats | Garage |
| Verdieping | 1 |
| Aantal verdiepingen | 4 |
| Gelijkvloers | Nee |
| Lift | Ja |
| Perceelsoppervlakte | 535m² |
| Bewoonbare oppervlakte | 482m² |
| Bebouwde oppervlakte | 519m² |
| Maandelijkse provisie | € 3.334 lasten, onroerende voorheffing en regionale belasting. |
| Meter voor elektriciteit | Individueel |
| Warmtepomp | Nee |
| Verwarmingsketel | Gemeenschappelijk |
| Meter voor aardgas | Individueel |
| Watermeter | Gemeenschappelijk |
| Beglazing | Dubbele beglazing |
Wettelijke informatie
Je kantoor
1050 Brussels
