




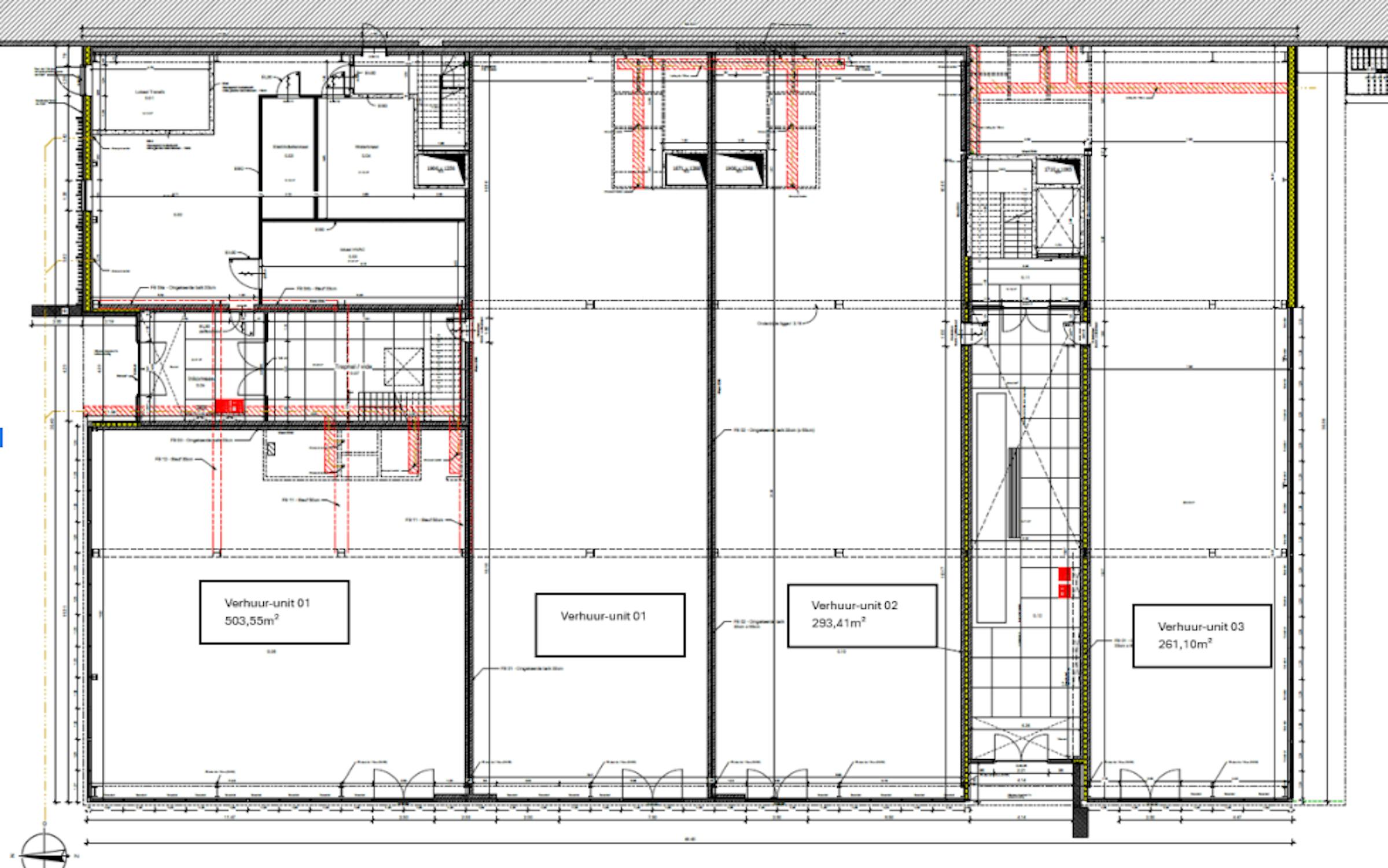
Casco commerciële ruimte (261 m²) te Stationsstraat 54, Oudenburg. Brandklasse B. Oplevering juni 2025. Ideaal voor eigen invulling op toplocatie.
Flexibele indeling door casco oplevering
Goede ligging in commerciële straat
Beschikbaar op korte termijn
Omschrijving
De ruimte wordt in casco staat opgeleverd. Dit betekent dat de basisstructuur aanwezig is, maar dat de volledige binnen afwerking, inclusief vloeren, wanden, plafonds, sanitaire voorzieningen, elektriciteit en eventuele verwarming/koeling, nog door de huurder dient te worden gerealiseerd.
Dit biedt de unieke kans om de ruimte volledig naar eigen smaak en functionele eisen in te richten, waardoor een perfecte afstemming op de beoogde commerciële activiteit mogelijk is.
De brandklasse B van het pand geeft aan dat het voldoet aan specifieke brandveiligheidsvoorschriften.
De verwachte oplevering in juni 2025 biedt een spoedige beschikbaarheid van deze interessante commerciële ruimte.
Bijzonderheden:
- Flexibele indeling mogelijk door de casco oplevering.
- Goede ligging in een commerciële straat.
- Voldoet aan brandklasse B.
- Beschikbaar op korte termijn.
- Afwerkingsgraad is bespreekbaar
Interesse?
Bent u op zoek naar bedrijfsvastgoed bestaande uit een commerciële ruimte te huur in Oudenburg? Contacteer ons voor meer informatie of een bezoek ter plaatse via bo.maertens@dewaele.com of 0472 18 64 92.
Documenten
Eigenschappen
| Type | Handelspand |
| Renovatiejaar | 2025 |
| Bebouwing | Halfopen |
| Staat | Nieuwe staat |
| Type parkeerplaats | Staanplaats |
| Handelsoppervlakte | 261m² |
| Rolbrug | Nee |
| Conformiteit keuringsattest | Ja |
| Stookolietank | Nee |
Wettelijke informatie
| EPB | in opmaak |
Je kantoor
8000 Brugge
