




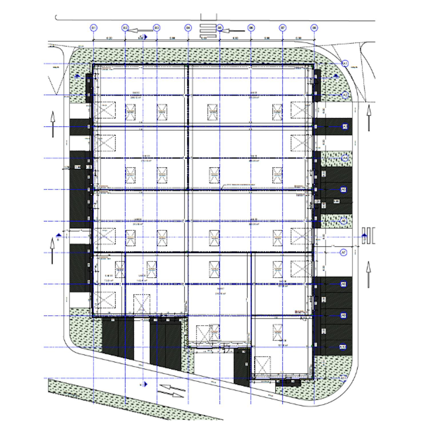
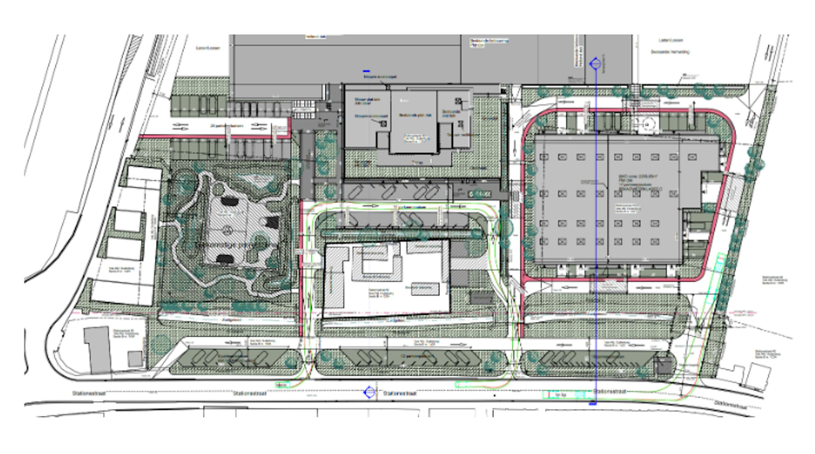
Centraal gelegen nieuwbouw KMO unit van 274 m² op een steenworp van het oprittencomplex E40 te Oudenburg, Topligging!
Nieuwbouw KMO-unit van ca. 274 m²
Inclusief staanplaats
Gelegen nabij de op- en afrit E40 in Oudenburg
Omschrijving
Kenmerken:
- KMO-unit (loods met glaspartij)
- Binnenoppervlakte: ca. 274 m²
- 1 à 2 bijhorende parkeerplaatsen naar gelang beschikbaarheid
- Zeer beveiligd afgesloten KMO Park
Afwerking:
- Gevel met moderne glaspartij
- Lichtstraat (elektrisch bedienbaar - opent bij brand)
- LED verlichting
- Automatische poort
- Nutsvoorzieningen (elektriciteit 63A 3-fasig 400V en stadswater)
- Mooie buitenaanleg met beplanting
Modaliteiten:
- KMO-unit in opbouw: EPB in opmaak
- Parkeerplaats inbegrepen
- Verdeelsleutel in gemeenscheenschappelijke onderhoudskosten voor onder meer groenonderhoud, parking en dak: ca. €30/maand
- Prijs exclusief BTW onder terbeschikkingstelling
- Laag registratierecht
- Oplevering voorjaar 2025
Aarzel zeker niet ons te contacteren indien dit bedrijfsvastgoed bestaande uit een nieuwbouw kmo-unit te huur in Oudenburg u mogelijks kan interesseren via business.brugge@dewaele.com of 050/33.33.00.
Documenten
Eigenschappen
| Type | Magazijn |
| Staat | Goede staat |
| Perceelsoppervlakte | 274m² |
| Bewoonbare oppervlakte | 274m² |
| Handelsoppervlakte | 274m² |
| Bebouwde oppervlakte | 274m² |
Wettelijke informatie
Je kantoor
8000 Brugge
