




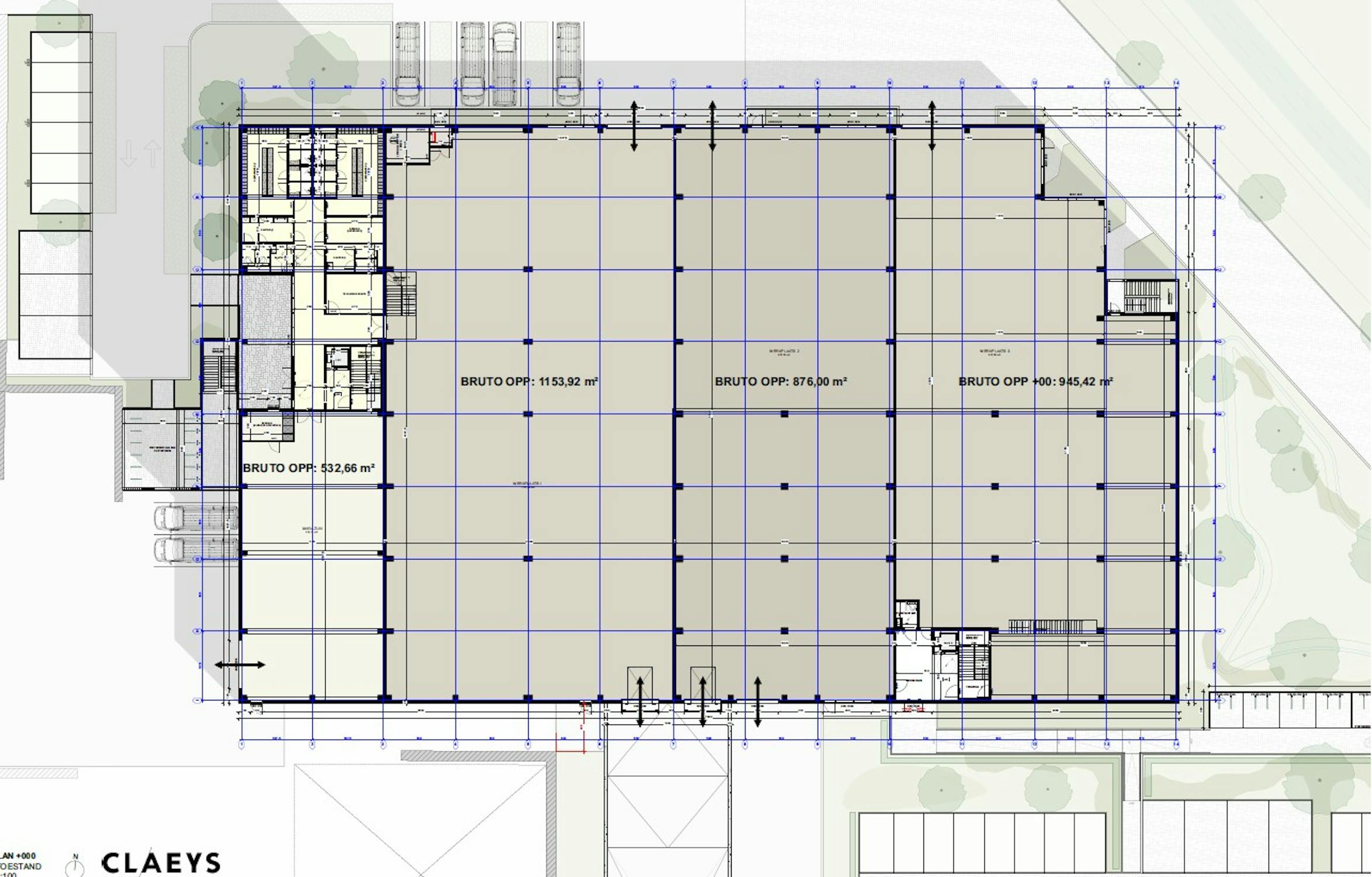
In project "Cascade" is een loods beschikbaar van ca. 876m² op topligging in Roeselare.
Een gebouw als groene waterval
Centrale ligging, langs de op- en afrit
Schitterende zichtbaarheid
Omschrijving
De site geniet een schitterende zichtbaarheid en is centraal gelegen nabij de op-en afrit van de E403.
Specificaties:
> vrije hoogte van ca 8 tot 8,7 meter
> sectionaalpoort
> laadkade
> gepolierde betonvloer
> mogelijkheid tot huren bijkomende loods en/of kantoor
De site wordt een duurzame en aangename werkplek met oog voor groen onder de vorm van ondermeer groengevels en daktuinen.
De eigendom geniet een schitterende visibiliteit op een erg centrale ligging.
Aarzel zeker niet om contact op te nemen indien dit bedrijfsvastgoed bestaande uit een loods te huur u mogelijks kan interesseren.
