




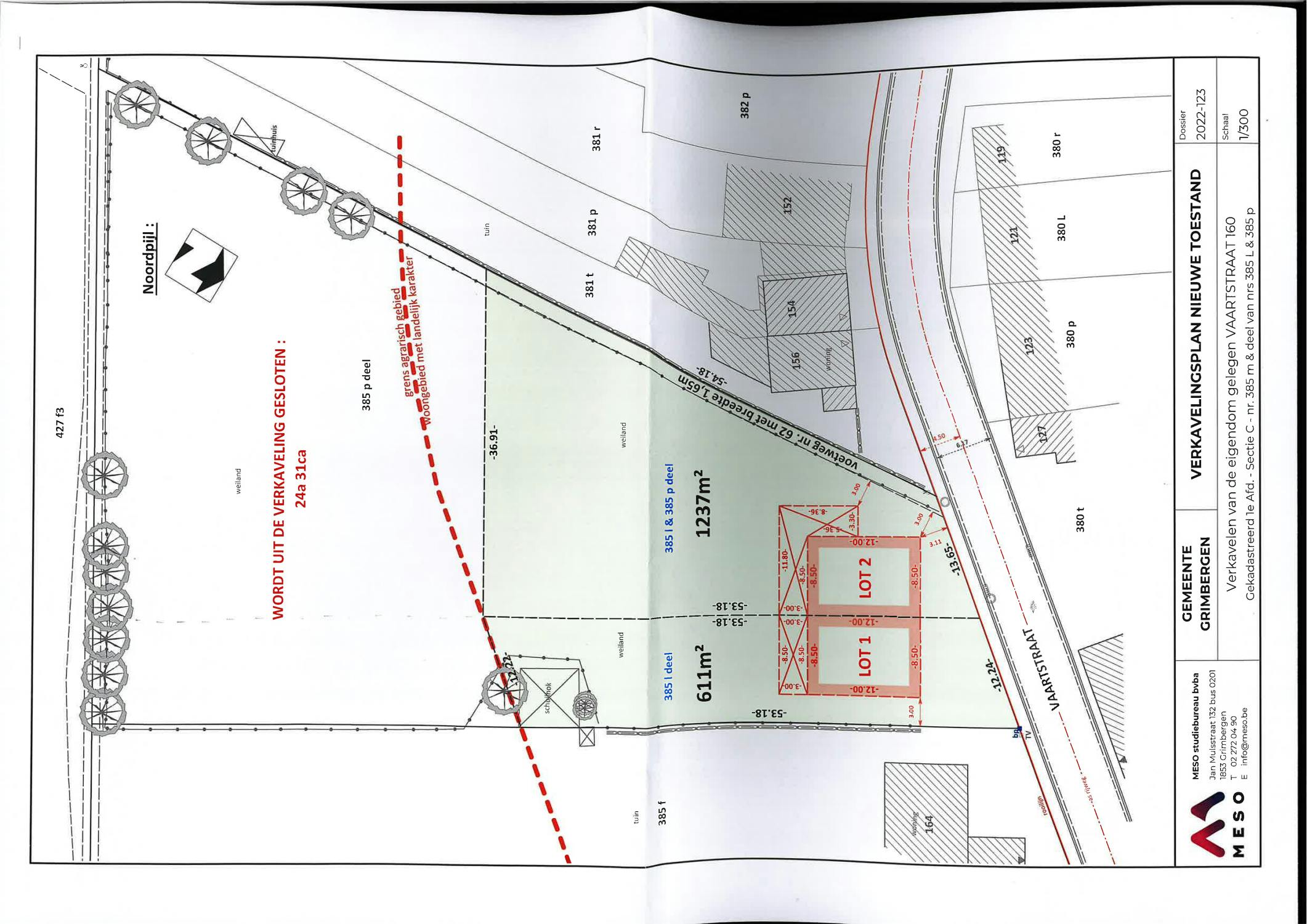
Goed gelegen bouwgrond voor een driegevelwoning, in een rustige straat te Grimbergen!
Grondoppervlakte
1200m²
|
(Bruto) oppervlaktes
/
|
Slaapkamers
/
|
Terras of tuin
Nee
|
Bouwjaar
/
|
EPC
/
|
Grondoppervlakte
1200m²
|
(Bruto) oppervlaktes
/
|
Slaapkamers
/
|
Terras of tuin
Nee
|
Bouwjaar
/
|
EPC
/
|
super gelegen grond
ideaal voor paarden/kleine huisdieren
zuidgeoriënteerd
Omschrijving
De voorschriften kan u rechtstreeks downloaden via onze website maar hierbij al enkelen:
Maximaal 2 bouwlagen, exclusief dakverdieping.
Ondergronds kan een extra bouwlaag worden
toegestaan, binnen de maximale bouwzone
De bebouwbare oppervlakte op het gelijkvloers
dient minimaal 80m² te bedragen en maximaal
deze van de op het verkavelingsplan aangegeven
bouwperimeter.
Maximale kroonlijsthoogte bij een hellend dak:
6,00m. Maximale kroonlijsthoogte bij een plat dak 6,50m
bij twee bouwlagen en 3,50m voor de gelijkvloerse
bouwlaag!

Hoeveel is je woning waard?
Documenten
Eigenschappen
Type | Bouwgrond |
Bebouwing | Halfopen |
Staat | Goede staat |
Private parkeerplaats(en) | 0 |
Perceelsoppervlakte | 1200m² |
Aankoop onder verkooprechten | Ja |
Aankoop onder BTW | Nee |
Wettelijke informatie
Watertoets | Gebouwscore: A / Perceelscore: A |
Afgebakend overstromingsgebied | nee |
Afgebakende oeverzone | nee |
Omgevingsvergunning voor stedenbouwkundige handelingen | ja |
Voorkooprecht | nee |
Stedenbouwkundige bestemming | woongebied met landelijk karakter, agrarisch gebied |
Omgevingsvergunning voor het verkavelen van gronden | in aanvraag |
Handhaving | geen rechterlijke herstelmaatregel of bestuurlijke maatregel opgelegd |
Je makelaars

Je kantoor

1850 Grimbergen