




Dit nieuwbouwappartement op de eerste verdieping in Rivert is gelegen aan de Van Meterenkaai in centrum Antwerpen en heeft een prachtig terras met zicht op de Schelde. Achteraan is er tevens een toegankelijk groen dak voorzien.
| Grondoppervlakte / | (Bruto) oppervlaktes 109m² | Slaapkamers 2 | 
| Terras Ja | Bouwjaar 2025 | EPB / | 
| Grondoppervlakte / | (Bruto) oppervlaktes 109m² | 
| Slaapkamers 2 | Terras Ja | 
| Bouwjaar 2025 | EPB / | 
Omschrijving
Algemene kenmerken:
- nieuwbouwproject op toplocatie in Antwerpen
- terras met uniek uitzicht op de Schelde en de jachthaven van Linkeroever
- vloerverwarming
- optie microtopping en maatwerk
- zonnepanelen aanwezig
- verkoop deels onder registratie, deels onder btw
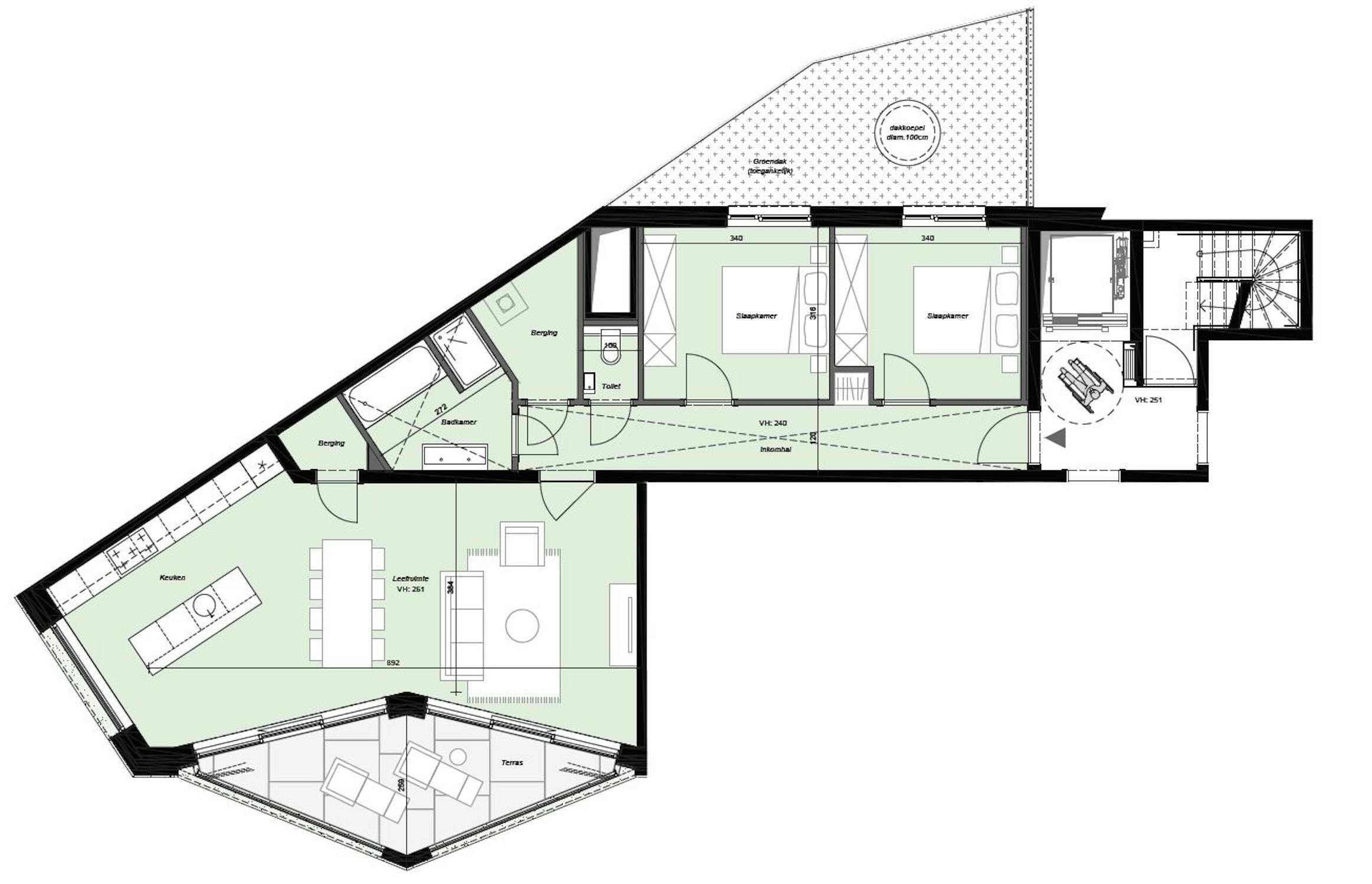
Indeling
- inkomhal met apart toilet
- leefruimte met prachtig zicht op de Schelde
- open keuken met kookeiland
- berging
- terras met schuifdraaisysteem
- achteraan 2 slaapkamers
- badkamer met ligbad en douche
- toegankelijk groen dak
Microtopping “ Less is More”
Dit nieuwbouwproject in Antwerpen biedt verschillende extra opties naar afwerking zoals microtopping. Microtopping is een perfecte keuze voor mensen die houden van een naadloos oppervlak, verticaal of horizontaal voor een unieke, elegante en moderne uitstraling. Een eindeloze keuze in kleuren, effecten en afwerking.
Even More
Goplus geeft je nog meer opties in Rivert, namelijk een volledig maatwerk van het totaalinterieur. Dit gaat van een geïntegreerde wand in houtfineer tot scheidingswanden, dressing en deuren. The sky's the limit!
Verkoop onder BTW stelsel.
Bent u geïnteresseerd in nieuwbouw, een appartement of woning te koop in Antwerpen? Aarzel dan niet om ons te contacteren.
Had u graag uw eigen eigendom te koop aangeboden contacteer ons dan voor een vrijblijvende schatting, telefonisch op het nummer 03/206.76.76 of per mail naar antwerpen@dewaele.com. Ook voor alle andere vragen omtrent vastgoed, kopen of verkopen in Antwerpen kan u steeds bij ons terecht!
 
        Hoeveel is je woning waard?
 
            Verlaagd btw-tarief van 6% mogelijk!
Bespaar duizenden euro’s op de aankoop van deze woning. Dankzij de wetgeving van de federale overheid rond afbraak en heropbouw betaal je slechts 6% btw op dit unieke nieuwbouwproject. Een financieel voordeel dat je niet wilt mislopen!
Documenten
Eigenschappen
| Type | Appartement | 
| Bouwjaar | 2025 | 
| Staat | Nieuwe staat | 
| Slaapkamers | 2 | 
| Badkamers | 1 | 
| Verdieping | 1 | 
| Aantal verdiepingen | 9 | 
| Gelijkvloers | Nee | 
| Lift | Ja | 
| Terras | 11m² | 
| Bewoonbare oppervlakte | 109m² | 
| Aankoop onder verkooprechten | Ja wat betreft de grondwaarde | 
| Aankoop onder BTW | Ja wat betreft de constructiewaarde | 
| Percentage BTW | 21% | 
| Grondwaarde (excl. verkooprechten) | € 193.750,00 | 
| Constructiewaarde (excl btw) | € 431.250,00 | 
| Meter voor elektriciteit | Individueel | 
| Verwarmingsketel | Gemeenschappelijk | 
| Verwarmingsbron | Aardgas | 
| Verwarmingstype | Vloerverwarming | 
| Meter voor aardgas | Gemeenschappelijk | 
| Watermeter | Individueel | 
| Beglazing | Dubbele beglazing | 
Wettelijke informatie
| Onroerend erfgoed | Het onroerend goed is beschermd als stadsgezicht (voor meer info over de rechtsgevolgen ga naar www.onroerenderfgoed.be) | 
| Afgebakend overstromingsgebied | nee | 
| Afgebakende oeverzone | nee | 
| Omgevingsvergunning voor stedenbouwkundige handelingen | ja | 
| Voorkooprecht | nee | 
| Stedenbouwkundige bestemming | woongebied met een culturele historische en/of esthetische waarde | 
| Omgevingsvergunning voor het verkavelen van gronden | nee | 
| Handhaving | geen rechterlijke herstelmaatregel of bestuurlijke maatregel opgelegd | 
Je makelaars
 
            
                
     
            
                
     
            
                Verantwoordelijke bouwprojecten
Partner
Vastgoedmakelaar - bemiddelaar
BIV 515 148
Je kantoor
 
        
        2000 Antwerpen

 
             
                                    
                                                                     
                                    
                                                                     
                                    
                                                                     
                                    
                                                                     
                                    
                                                                     
                                    
                                                                     
                                    
                                                                     
                                    
                                                                     
                                    
                                                                     
                                    
                                                                     
                                    
                                                                     
                                    
                                                                     
                                    
                                                                     
                                    
                                                                     
                                    
                                                                     
                                    
                                                                     
                                    
                                                                     
                                    
                                                                     
                                    
                                                                     
                                    
                                                                     
                                    
                                                                     
                                    
                                                                     
                                    
                                                                     
                                    
                                                                     
                                         
                                         
                                         
                                         
                                         
                                         
                                         
                                         
                                         
                                         
                                         
                                         
                                         
                                         
                                         
                                         
                                         
                                         
                                         
                                         
                                         
                                         
                                         
                                         
             
            