




Ontdek deze moderne en energiezuinige nieuwbouwwoning gelegen in een kleinschalig nieuwbouwproject van 6 woningen in het hart van Otegem (Zwevegem). Deze woning combineert hedendaags wooncomfort, lichte ruimtes en duurzame technieken tot een perfect geheel.
|
Grondoppervlakte
408m²
|
(Bruto) oppervlaktes
102m²
|
Slaapkamers
3
|
|
Tuin
Ja
|
Bouwjaar
2026
|
EPB
/
|
|
Grondoppervlakte
408m²
|
(Bruto) oppervlaktes
102m²
|
|
Slaapkamers
3
|
Tuin
Ja
|
|
Bouwjaar
2026
|
EPB
/
|
Energiezuinige nieuwbouwwoning
Zonnige tuin
Aanwezigheid carport
Omschrijving
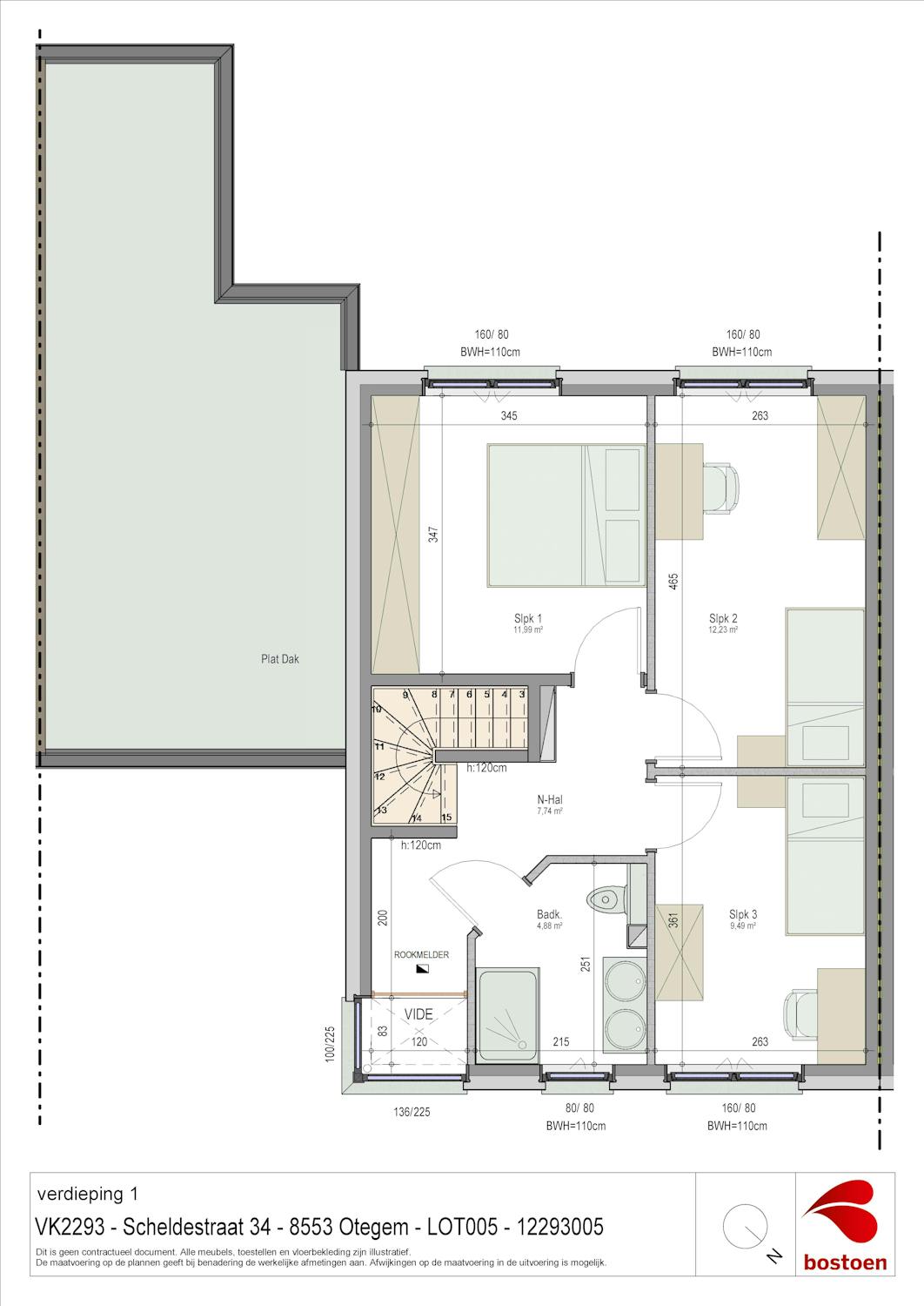
Op de bovenverdieping bevinden zich drie volwaardige slaapkamers en een stijlvolle badkamer met kwaliteitsvolle afwerking.
Deze woning is volledig uitgerust met de nieuwste energiezuinige technieken:
- Warmtepomp
- Zonnepanelen
- Ventilatiesysteem D
- Vloerverwarming met koeling
Buiten geniet je van een aangename tuin met terras, een carport en een praktische tuinberging.
Dankzij de energiezuinige inrichting en moderne afwerking woon je hier niet alleen stijlvol, maar ook toekomstgericht.
Troeven van deze woning:
- 3 ruime slaapkamers
- Lichtrijke leefruimte met open keuken
- Energiezuinig dankzij warmtepomp en zonnepanelen
- Vloerverwarming met koeling
- Tuin met terras, carport en berging
- Vlotte bereikbaarheid
Deze woning biedt alles wat je zoekt: comfort, kwaliteit en duurzaamheid in een rustige woonomgeving vlak bij Zwevegem en Kortrijk.
Wens je meer info?
056 22 55 66 - kortrijk@dewaele.com
Hoeveel is je woning waard?
Documenten
Eigenschappen
| Type | Huis |
| Bouwjaar | 2026 |
| Bebouwing | Halfopen |
| Staat | Nieuwe staat |
| Slaapkamers | 3 |
| Badkamers | 1 |
| Type parkeerplaats | Carport |
| Aantal verdiepingen | 2 |
| Tuin | 1m² |
| Terras | 23m² |
| Perceelsoppervlakte | 408m² |
| Bewoonbare oppervlakte | 102m² |
| Aankoop onder verkooprechten | Ja wat betreft de grondwaarde |
| Aankoop onder BTW | Ja wat betreft de constructiewaarde |
| Percentage BTW | 21% |
| Grondwaarde (excl. verkooprechten) | € 79.750,00 |
| Constructiewaarde (excl btw) | € 250.250,00 |
| Lichtstraten | Nee |
| Rolbrug | Nee |
| Verwarmingstype | Vloerverwarming |
| Beglazing | Dubbele beglazing |
Wettelijke informatie
| EPB | in opmaak |
| Afgebakend overstromingsgebied | nee |
| Afgebakende oeverzone | nee |
| Omgevingsvergunning voor stedenbouwkundige handelingen | in aanvraag |
| Voorkooprecht | nee |
| Stedenbouwkundige bestemming | woonuitbreidingsgebied |
| Omgevingsvergunning voor het verkavelen van gronden | in aanvraag |
| Handhaving | in aanvraag |
Je kantoor
8500 Kortrijk
