

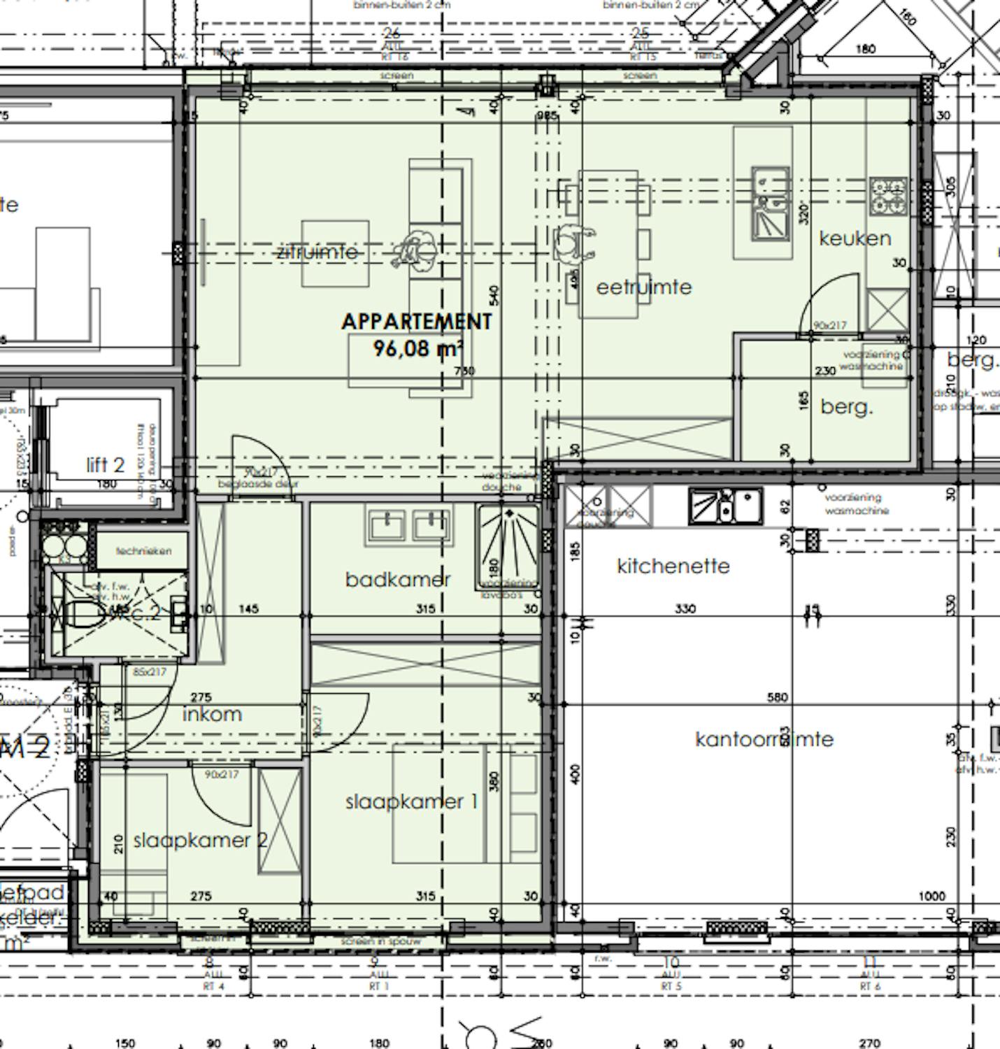
Ruim gelijkvloers appartement (96,32 m²) te koop in residentie August in Ieper. Dit lichtrijk appartement heeft twee mooie slaapkamers en een privé tuin met prachtig terras. 6% BTW mogelijk!
|
Rendement
2,85 %
|
Huurprijs
€ 9.600/jaar
|
Huursituatie
Niet verhuurd
|
(Bruto) oppervlaktes
96m²
|
|
Bouwjaar
2025
|
Slaapkamers
2
|
Tuin
Ja
|
EPB
/
|
|
Rendement
2,85 %
|
Huurprijs
€ 9.600/jaar
|
|
Huursituatie
Niet verhuurd
|
(Bruto) oppervlaktes
96m²
|
|
Bouwjaar
2025
|
Slaapkamers
2
|
|
Tuin
Ja
|
EPB
/
|
Ligging nabij centrum
Lichtrijk
Alles op wandelafstand
Omschrijving
INDELING
Gelijkvloers: Inkom met apart toilet - twee slaapkamers - badkamer met lavabomeubel en inloopdouche - ruime lichtrijke woonkamer met open keuken - berging - privé tuin met ruim terras.
Daarnaast heeft u de mogelijkheid om een ondergrondse autostaanplaats en kelderberging bij aan te kopen. Een fietsenberging is voorzien in het gebouw en is inbegrepen in de aankoopprijs.
Residentie August bevindt zich op de hoek van de Augustijnenstraat en de Haiglaan, een topligging in Ieper. Het project bestaat uit stijlvolle één- en tweeslaapkamerappartementen, gebouwd met duurzame en energiezuinige materialen.
Bereken je rendement
Rendementsrapport
Deze eigendom is ook geschikt als investering. Maak gebruik van onze simulator om je rendement te berekenen of neem contact op voor meer info.
Documenten
Eigenschappen
| Type | Appartement |
| Bouwjaar | 2025 |
| Bebouwing | Gesloten |
| Staat | Nieuwe staat |
| Slaapkamers | 2 |
| Badkamers | 1 |
| Private parkeerplaats(en) | 1 |
| Type parkeerplaats | Staanplaats |
| Aantal verdiepingen | 1 |
| Gelijkvloers | Ja |
| Lift | Ja |
| Tuin | 51m² |
| Terras | 18m² |
| Bewoonbare oppervlakte | 96m² |
| Maandelijkse provisie | € 50 |
| Aankoop onder verkooprechten | Ja |
| Aankoop onder BTW | Nee |
| Notariskosten (indicatief) | 4.000 |
| Raming aansluitingskosten | 4.000 |
| Jaarhuur (indicatief) | € 9.600 |
| Bruto huurrendement | 2.85 % |
| BEN woning | Ja |
| Conformiteit keuringsattest | Ja |
| Stookolietank | Nee |
| Verwarmingstype | Vloerverwarming |
| Beglazing | Dubbele beglazing |
Wettelijke informatie
| EPB | in opmaak |
| Watertoets | Gebouwscore: A / Perceelscore: A |
| Afgebakend overstromingsgebied | nee |
| Afgebakende oeverzone | nee |
| Omgevingsvergunning voor stedenbouwkundige handelingen | in aanvraag |
| Voorkooprecht | nee |
| Stedenbouwkundige bestemming | woongebied |
| Omgevingsvergunning voor het verkavelen van gronden | niet ingegeven |
| Handhaving | geen rechterlijke herstelmaatregel of bestuurlijke maatregel opgelegd |
Je makelaars
Je kantoor
8900 Ieper
