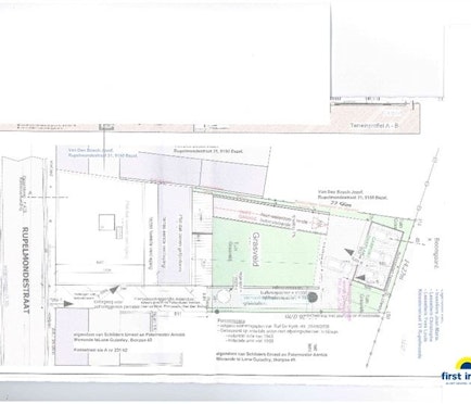
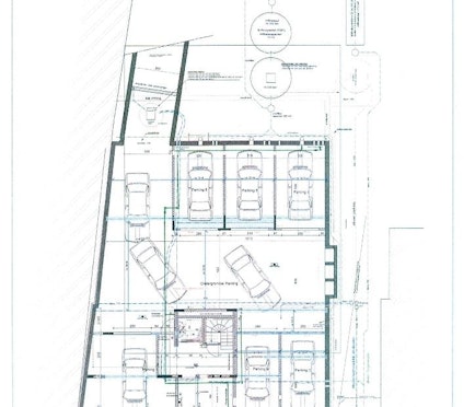
Nieuwbouw residentie met zes hoogwaardig afgewerkte appartementen in het centrum van Bazel. Alle appartementen beschikken over 2 slaapkamers, dressing en ruim west georiënteerd terras. Er is een ondergrondse parking met 6 garages en achteraan op het terrein 3 carports. Wettelijke vermeldingen: Vg/Wg/Gmo/Vkr/Gvv .
|
(Bruto) oppervlaktes
/
|
Slaapkamers
/
|
Prijs
/
|
Bouwfase
Start der werken
|
|
Parkeerplaats
/
|
Opleverdatum
/
|
Terras
/
|
Niet meer beschikbaar (%)
/
|
|
(Bruto) oppervlaktes
/
|
Slaapkamers
/
|
|
Prijs
/
|
Bouwfase
Start der werken
|
|
Parkeerplaats
/
|
Opleverdatum
/
|
|
Terras
/
|
Niet meer beschikbaar (%)
/
|





Een greep uit ons aanbod
Gelijkvloers
| Pandnr. | Slaapkamers |
Oppervlakte
|
Terras | Tuin | Docs. | Prijs | |
| D9150-FI60502 | 2 | 122m² | 19m² | |
/
|
Verkocht! | |
Gelijkvloers appartement app. 1
122m²
2
Verkocht! |
|||||||
Graag meer info of advies?
Wettelijke informatie
| EPB | EPB in opmaak |
| Watertoets | Gebouwscore: A / Perceelscore: A |
| Afgebakend overstromingsgebied | nee |
| Afgebakende oeverzone | nee |
| Omgevingsvergunning voor stedenbouwkundige handelingen | niet ingegeven |
| Voorkooprecht | niet ingegeven |
| Stedenbouwkundige bestemming | niet ingegeven |
| Omgevingsvergunning voor het verkavelen van gronden | niet ingegeven |
| Handhaving | niet ingegeven |
